GERLAND TECHNOPARK II - C ET D
23-31 RUE SAINT JEAN DE DIEU
LYON, 69007
170,63 € / m²
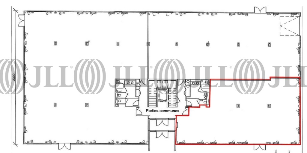
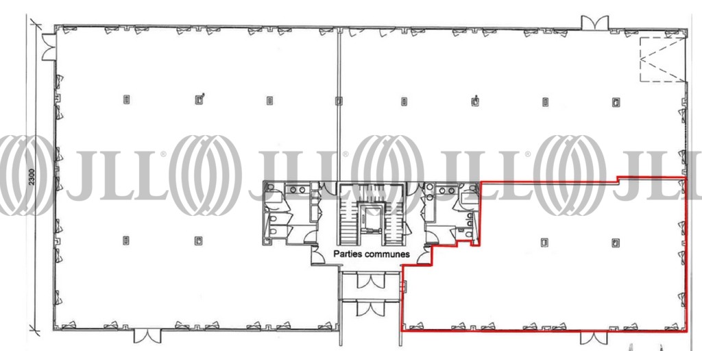
- Surface756 m² divisibles dès 207 m² (env. 75 postes)
- DisponibilitéImmédiate
- Description
- Prestations & Services
- DPE
- Localisation et Transports
- Plans
- Brochure
- Consultant
- Nous contacter
Description
Bureaux à louer à GERLAND TECHNOPARK
Découvrez les différents plateaux situés au 23-31 rue Saint Jean de Dieu, dans le quartier dynamique de Lyon 7. Disponibles immédiatement, ces espaces professionnels offrent un environnement de travail confortable et fonctionnel.
Installé dans un site fermé doté de prestations soignées telles que des espaces verts, un contrôle d’accès extérieur (digicode/interphone) et un ascenseur, cet immeuble optimise l’accueil de vos collaborateurs et visiteurs. Les bureaux, en bon état d’usage, disposent d’un faux plafond avec luminaires encastrés, de plinthes périphériques, d’une climatisation réversible et de sanitaires partagés.
L’immeuble est facilement accessible grâce à plusieurs options de transport : tramway T6 à 550 m, métro ligne B station "Debourg" à 14 minutes à pied, bus Zi 6, et accès rapide aux grands axes A6, A7, A43 et au périphérique Sud. Vous rejoignez la gare TGV Part-Dieu en 40 minutes, Perrache en 35 minutes, et l’aéroport Lyon-Saint Exupéry en 30 minutes en voiture.
Les informations sur les risques auxquels ce bien est exposé sont disponibles sur le site Géorisques : www.georisques.gouv.fr
Charges parkings : 220 € HT/an
Taxe foncière comprise dans les charges
Surface disponible
DPE
Diagnostic en cours de réalisation
Localisation et Transports
Aéroport et gare TGV Lyon-Saint Exupéry à 30 min en voiture Bus Zi 6 relie Techsud au métro ligne B station "Debourg" en 10 min et à la halte ferroviaire "Jean Macé" en 12 min Tramway T6 station à 550m
Accès rapide au boulevard Périphérique Sud – A6 - A7 et A43
Consultant

Soham Allard
Détails de l'agent





