Bureaux
Réf. 96897LE BRITANNIA
20 BOULEVARD EUGENE DERUELLE
LYON, 69003
150 € / m²
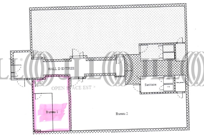
- Surface596 m² divisibles dès 62 m² (env. 59 postes)
- DisponibilitéImmédiate
- Description
- Prestations & Services
- DPE
- Localisation et Transports
- Plans
- Brochure
- Consultant
- Nous contacter
Description
Situé au 20 Boulevard Eugène Deruelle à Lyon (69003), LE BRITANNIA propose des espaces de bureaux disponibles immédiatement. Avec une surface totale de 510 m² divisible à partir de 62 m², cet immeuble offre des solutions adaptées aux besoins des entreprises.
Excellente accessibilité (métro, tramways, bus).
Les informations sur les risques auxquels ce bien est exposé sont disponibles sur le site Géorisques : www.georisques.gouv.fr
Surface disponible
DPE
Diagnostic en cours de réalisation
Localisation et Transports
. Métro : Part Dieu (ligne B) . SNCF : Gare Lyon Part Dieu . Bus : Lignes C1, C2, C6, C7, C9, C13, C25, 25, 37, 38 et 70 . Tramway T1, T3 et T4 : Gare Part Dieu . Accès routiers : Cours Lafayette / Rue Garibaldi / Boulevard Vivier Merle
Consultant

Martin Mirandon
Détails de l'agent
Informations Marchés
Le marché locatif
20 BOULEVARD EUGENE DERUELLE, 69003
Loyer moyen *
150 € / m²
60 offres à louerEn savoir plus* Moyenne calculée sur la base des transactions réalisées au cours des 12 derniers mois







