3 PLACE DE LA BOURSE
LYON, 69002
250 € / m²
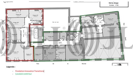
- Surface195 m² (env. 19 postes)
- DisponibilitéImmédiate
- Description
- Prestations & Services
- DPE
- Localisation et Transports
- Plan
- Brochure
- Consultant
- Nous contacter
Description
Bureaux à louer au coeur de la Presqu'ïle de Lyon.
JLL vous présente à la location 195 m² de bureaux bénéficiant d'un emplacement de premier choix au 3 Place de la Bourse, en plein cœur du prestigieux 2e arrondissement de Lyon, dans un immeuble type haussmanien.
Idéalement situés au cœur de la Presqu’île, vous profiterez d'un environnement particulièrement dynamique et animé, avec un accès immédiat à une multitude de commerces, restaurants et services. L'excellente desserte par les transports en commun assure une accessibilité optimale pour vos collaborateurs et visiteurs.
Les locaux sont entièrement aménagés et se composent actuellement de plusieurs bureaux fermés, une configuration parfaite pour les activités nécessitant de la confidentialité. Des sanitaires privatifs ainsi qu'un espace pour déjeuner complètent cet ensemble.
Les informations sur les risques auxquels ce bien est exposé sont disponibles sur le site Géorisques : www.georisques.gouv.fr
Les charges comprennent chaud-froid.
Surface disponible
DPE
Diagnostic en cours de réalisation
Localisation et Transports
. Gare TGV Perrache à 6min (3 arrêts de métro)
. Bus lignes C3, C5, C9, C13, C14 et C23 à proximité immédiate
Consultant
Caroline Martin
Détails de l'agent







