
WORK#1
44-48 QUAI PERRACHE
LYON, 69002
318 € / m²
- Surface876 m² (env. 87 postes)
- DisponibilitéNous consulter
- Description
- Prestations & Services
- DPE
- Localisation et Transports
- Plans
- Brochure
- Consultant
- Nous contacter
Description
Bureaux à louer "Enseignement supérieur" - CONFLUENCE Lyon 2ème
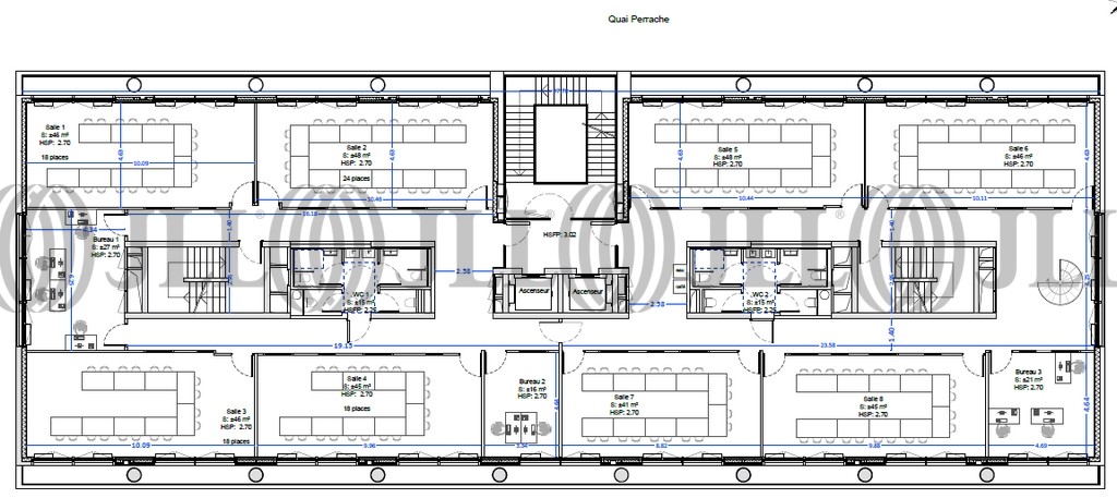
JLL vous propose des locaux idéaux pour l'enseignement supérieur à louer : Immeuble WORK#1, 44 quai Perrache, dans le cadre d'une recherche de successeur ou d'une sous-location pour cet espace de 876 m² classé ERP catégorie 5, offrant une configuration parfaitement adaptée à l'enseignement supérieur. Les locaux comprennent neuf salles de classe aménagées d'une capacité de 18 à 24 personnes chacune et un espace cafétéria entièrement équipé, avec possibilité de reprise du matériel et du mobilier.
L'immeuble répond aux normes d'accessibilité avec accès PMR et dispose d'un ascenseur, d'une terrasse ainsi que d'un contrôle d'accès extérieur. Un local vélos de 78 m² est également disponible en rez-de-chaussée.
Les locaux en état d'usage présentent une hauteur sous plafond de 2,7 mètres avec faux plancher. Le système de chauffage et rafraîchissement est assuré par ventilo-convecteurs 4 tubes en faux plafond, complété par une ventilation naturelle nocturne. Les menuiseries extérieures ouvrantes à la française et oscillo-battantes sont équipées de brise-soleil orientables électriques.
L'emplacement bénéficie d'une desserte exceptionnelle à moins de 10 minutes du pôle multimodal de Perrache regroupant gare TGV, métro ligne B, tramways T1 et T2 et dix lignes de bus. L'arrêt de bus ligne 63 se trouve à 100 mètres, l'arrêt de tramway "Hôtel de région Montrochet" à environ 200 mètres. Les stations Vélo'v de proximité et l'accès rapide aux autoroutes A6, A7 ainsi qu'au boulevard périphérique Laurent Bonnevay garantissent une connectivité optimale pour étudiants et personnel enseignant.
Les informations sur les risques auxquels ce bien est exposé sont disponibles sur le site Géorisques : www.georisques.gouv.fr
Capacitaire : 209 personnes
Surface disponible
DPE
Diagnostic en cours de réalisation
Localisation et Transports
Bus ligne 63 arrêt à 100m
Stations vélo'v
Tramway T1 et T2 : arrêt "Hôtel de région Montrochet" à 200m environ
Accès rapide autoroute A6 et A7, boulevard périphérique Laurent Bonnevay
Consultant

Nicolas Mainguy
Détails de l'agent