ARABESK
2 RUE CHARLES BAUDELAIRE
LYON, 69002
265 € / m²
- Surface151 m² (env. 15 postes)
- Disponibilité2e trim. 2026
- Description
- Prestations & Services
- DPE
- Localisation et Transports
- Plan
- Brochure
- Consultant
- Nous contacter
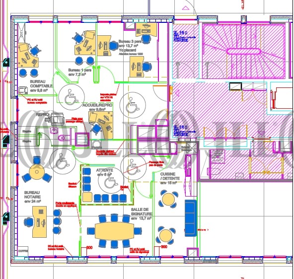
Description
Bureaux à louer à ARABESK – 2 rue Charles Baudelaire, Lyon (69002)
Découvrez ARABESK, un immeuble contemporain et primé aux Pyramides d'Or, idéalement situé dans le dynamique quartier de Lyon Confluence. A louer, un espace de 151 m², parfaitement adapté aux entreprises en recherche de bureaux fonctionnels.
Les prestations remarquables incluent : un hall d'entrée élégant en pierre naturelle, quatre ascenseurs, des terrasses au design épuré (béton aspect glacé), plafonds en bois nordique blanchis et luminaires LED. Ce lot comprend une cuisine avec espace détente, un accueil, un open space, une salle de réunion, trois bureaux privatifs, un sanitaire privatif et des espaces sanitaires avec douches en parties communes. Le revêtement au sol est en dalle moquette amovible, les installations sanitaires en carrelage Marazzi et la hauteur sous plafond atteint 2,80 m.
Pour un confort optimal, profitez d’un chauffage par le sol, d’un système de rafraîchissement adiabatique, de cloisons modulables, d’un cablage RJ45 et d’une climatisation. Un local vélo est également à disposition. L’immeuble bénéficie des certifications environnementales BBCA et BREEAM Excellent, garantissant des performances énergétiques et durables.
L’accessibilité est un atout majeur : à seulement 150 m des tramways T1/T2 (station "Hôtel de Région - Montrochet"), proche des axes autoroutiers (A6, A7, quais de Saône et Rhône) et à 8 min de Perrache, pôle multimodal avec des connexions en TGV, métro et bus
Les informations sur les risques auxquels ce bien est exposé sont disponibles sur le site Géorisques : www.georisques.gouv.fr
- Loyer terrasses : 70 € HT/m²/an
- Charges : entretien des parties communes, sanitaires, cour jardinée), eau froide, eau chaude, chauffage.
Les 10 places sont situées sur le parking LPA en amodiation - durée 20 ans
Surface disponible
DPE
Diagnostic en cours de réalisation
Localisation et Transports
Stations vélo'v
Accès rapide autoroutes A6 et A7, quais de Saône et du Rhône
Pôle multimodal Perrache en 8 min environ : Gare TGV/TER, métro ligne A, Tramway lignes T1 et T2, nombreuses lignes de bus
Consultant

Martin Mirandon
Détails de l'agent







