UNITY
56 RUE SMITH
LYON, 69002
240 € / m²
- Surface150 m² (env. 15 postes)
- DisponibilitéNous consulter
- Description
- Prestations & Services
- DPE
- Localisation et Transports
- Plans
- Brochure
- Consultant
- Nous contacter
Description
Bureaux à louer à UNITY, 56 RUE SMITH, LYON (69002).
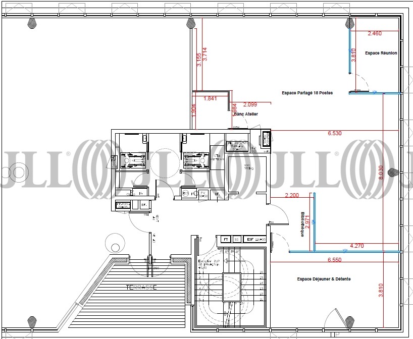
Découvrez l'UNITY, un immeuble à Lyon (69002) offrant des espaces de bureaux de qualité de 150 m² : un open space, une salle de réunion, une cuisine, des cloisons vitrées, un faux plancher, de la moquette, une fibre optique, une prise RJ45 et une baie de brassage pour répondre aux besoins de votre entreprise.
De plus, l'UNITY dispose d'un contrôle d'accès extérieur par interphone, un ascenseur et une terrasse partagée pour agrémenter votre espace de travail. Le bâtiment suit les certifications HQE NEUF OU RENOVÉ EXCEPTIONNEL, EFFINERGIE + NEUF 2013 pour assurer durabilité et consommation optimisée.
Côté accessibilité, profitez de l'accessibilité optimale avec le Tramway T1 / T2 - arrêt Hôtel de Région / Montrochet à 100m, la ligne A du métro à la gare de Perrache à 500m, de nombreux bus au pôle multimodal Perrache et une liaison TGV directe à la gare de Perrache. Pour les véhiculistes, l'accès rapide aux Quais du Rhone et de la Saone Axe /S, ainsi que les autoroutes A7/A6 sont à proximité
Les informations sur les risques auxquels ce bien est exposé sont disponibles sur le site Géorisques : www.georisques.gouv.fr
Capacitaire : 19 personnes
Surface disponible
DPE
Diagnostic en cours de réalisation
Localisation et Transports
Ligne A : métro Perrache à 500 m
De nombreux bus au pôle multimodal Perrache
Liaison TGV directe : gare de Perrache a 500 m
Gare Part Dieu (via le T1 ou métro ligne A)
Voiture : acces rapide aux Quais du Rhone et de la Saone Axe /S, autoroutes A7/A6
Consultant
Caroline Martin
Détails de l'agent






