7 RUE DE LA REPUBLIQUE
LYON, 69001
330 € / m²
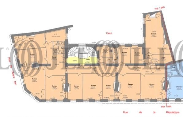
- Surface348 m² (env. 34 postes)
- DisponibilitéImmédiate
- Description
- Prestations & Services
- DPE
- Localisation et Transports
- Plans
- Brochure
- Consultant
- Nous contacter
Description
Bureaux à louer - RUE DE LA REPUBLIQUE, Lyon 1er
JLL vous propose au sein d'un immeuble type haussmannien, un plateau de bureaux de 348 m² en très bon état, offrant un cadre de travail exceptionnel au cœur de la Presqu'île, dans le quartier d'affaires lyonnais, à seulement 5 minutes en métro de la gare TGV Lyon Perrache.
L'immeuble dispose d'un contrôle d'accès extérieur sécurisé et d'un ascenseur. Ces espaces en état d'usage conjuguent le charme de l'ancien et la fonctionnalité moderne avec de belles hauteurs sous plafond et une luminosité exceptionnelle, 100% des surfaces bénéficiant d'un éclairage naturel en premier jour. Les locaux comprennent un espace cuisine équipé, des sanitaires privatifs, ainsi qu'une climatisation double flux pour un confort thermique optimal. L'infrastructure technique est complète avec la fibre optique et des prises RJ45.
La localisation est idéale avec un accès direct au métro Cordeliers (ligne A), la gare SNCF Perrache à 3 arrêts de métro, et de nombreuses lignes de bus à proximité (C3, C5, C13, C14, C23, 9, 27 et 171). Les stations Vélo'V facilitent également les déplacements en mobilité douce
Les informations sur les risques auxquels ce bien est exposé sont disponibles sur le site Géorisques : www.georisques.gouv.fr
Bureaux à louer - RUE DE LA REPUBLIQUE, Lyon 1er
Surface disponible
DPE
Diagnostic en cours de réalisation
Localisation et Transports
Consultant

Martin Mirandon
Détails de l'agent







