CAP DE SEINE
45-47 QUAI JEAN COMPAGNON
IVRY SUR SEINE, 94200
220 € / m²
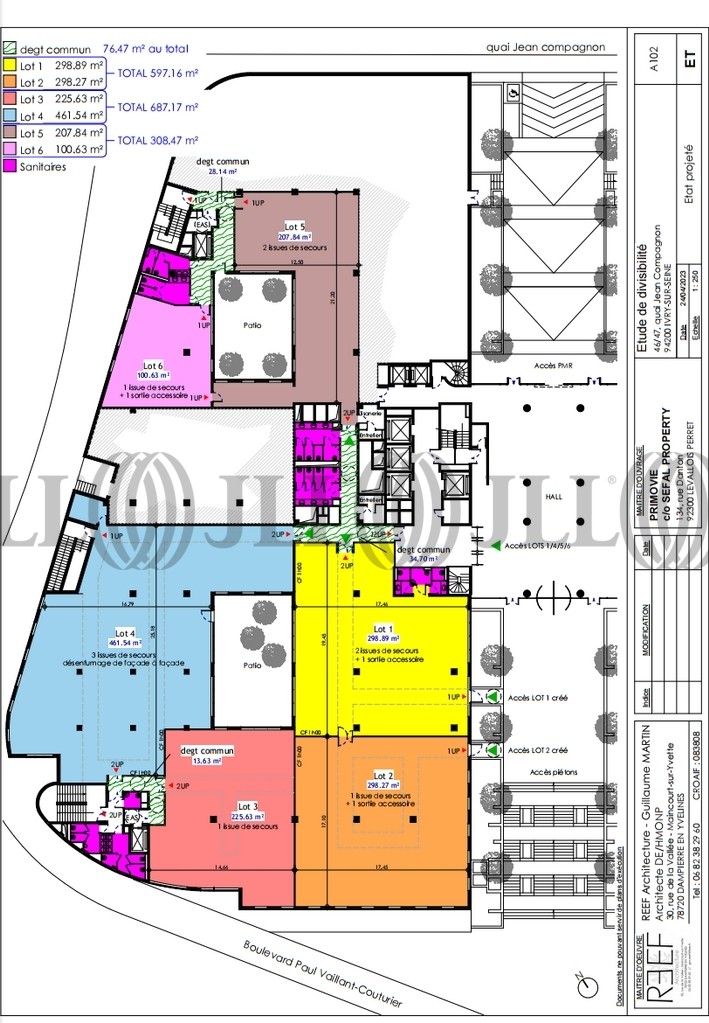
- Surface6 018 m² divisibles dès 254 m² (env. 601 postes)
- DisponibilitéImmédiate
- Description
- Prestations & Services
- DPE
- Localisation et Transports
- Plan
- Brochure
- Consultant
- Nous contacter
Description
JLL vous propose des bureaux divisibles à partir de 123 m² dans l'immeuble CAP DE SEINE situé à Ivry-sur-Seine (94200), au sein d'un ensemble immobilier tertiaire de grande qualité. Bénéficiant d'un emplacement privilégié en front de Seine, les plateaux de bureaux offrent une luminosité exceptionnelle et des vues remarquables sur le fleuve. La proximité des transports en commun constitue un atout majeur avec les lignes de métro 7, 8 et le RER C, complétées par 6 lignes de bus à proximité, faisant de cette implantation une localisation stratégique dans le quartier tertiaire des quais d'Ivry. Avec plus de 100 000 m² de bureaux et un centre commercial dans les environs, cette zone dynamique offre une atmosphère animée idéale pour votre activité professionnelle. CAP DE SEINE combine cadre naturel exceptionnel en bord de Seine, accessibilité transport optimale et environnement tertiaire développé. Cette opportunité permet de bénéficier d'un cadre de travail privilégié dans l'un des secteurs les plus attractifs d'Ivry-sur-Seine
Les informations sur les risques auxquels ce bien est exposé sont disponibles sur le site Géorisques : www.georisques.gouv.fr
Surface disponible
DPE
Diagnostic en cours de réalisation
Localisation et Transports
. Métro : Liberté (ligne 8) à 11 min à pied
. RER C : Ivry sur Seine à 8 min à pied
. Bus : Lignes 125, 132, 180, 325, T Zen 5 au pied de l’immeuble (liaison directe avec le métro ligne 14)
. Accès routiers : A4 / A86 - BP puis quais de Seine et A6
. Navette fluviale : Vogueo (gare d'Austerlitz/ Maisons Alfort)
Consultant

Ludovic Le cossec
Détails de l'agent







