DISSY
16-20 RUE ROUGET DE LISLE
ISSY LES MOULINEAUX, 92130
560 € / m²
- Surface17 391 m² (env. 1 739 postes)
- Disponibilité2e trim. 2027
- Description
- Prestations & Services
- DPE
- Localisation et Transports
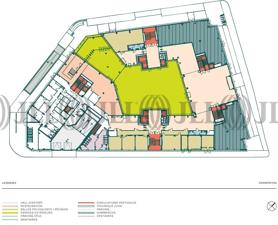
- Plans
- Brochure
- Consultant
- Nous contacter
Description
DISSY est la nouvelle opération de bureaux à louer à Issy-les-Moulineaux (92), très visible à proximité du hub de transports Val-de-Seine (RER C, Tramway T2) et non loin du Métro 12 Mairie D’Issy. Cette spectaculaire restructuration prend place dans un environnement de sièges sociaux (Orange, Capgemini, Canal+ etc.) et de lieux de vie attractifs (Halles Biltoki, parc Suzanne Lenglen, bords de Seine…). Le projet, signé de l’architecte Jean-Luc Crochon (Cro&co), porte de profondes ambitions RSE et peut se subdiviser en 2 verticalités indépendantes. DISSY est un immeuble qui se réinvente, doté de façades expressives et différenciées selon l’exposition. Il offrira des plateaux très distinctifs par leurs espaces en double hauteur, augmentés de 2 niveaux avec HSP de 3,50 m ainsi que de très nombreux espaces extérieurs. Un programme exemplaire en termes de bilan carbone, de performances énergétiques et environnementales (géothermie) et d’accès à de nouveaux services.
Les informations sur les risques auxquels ce bien est exposé sont disponibles sur le site Géorisques : www.georisques.gouv.fr
Loyer parkings motos (72) : 1 000 €/U/an
Surface disponible
DPE
Diagnostic en cours de réalisation
Localisation et Transports
. Tramway T2 : Issy Val de Seine
. Métro : Mairie d'Issy (ligne 12)
. Métro : ligne 15 Issy (mi-2026) à une station de RER C
. Métro : ligne 8 Balard à 2 stations de T2 (S. Lenglen)
Consultant

David Bournat
Détails de l'agent







