IN SITU
59 RUE YVES KERMEN
BOULOGNE BILLANCOURT, 92100
415 € / m²
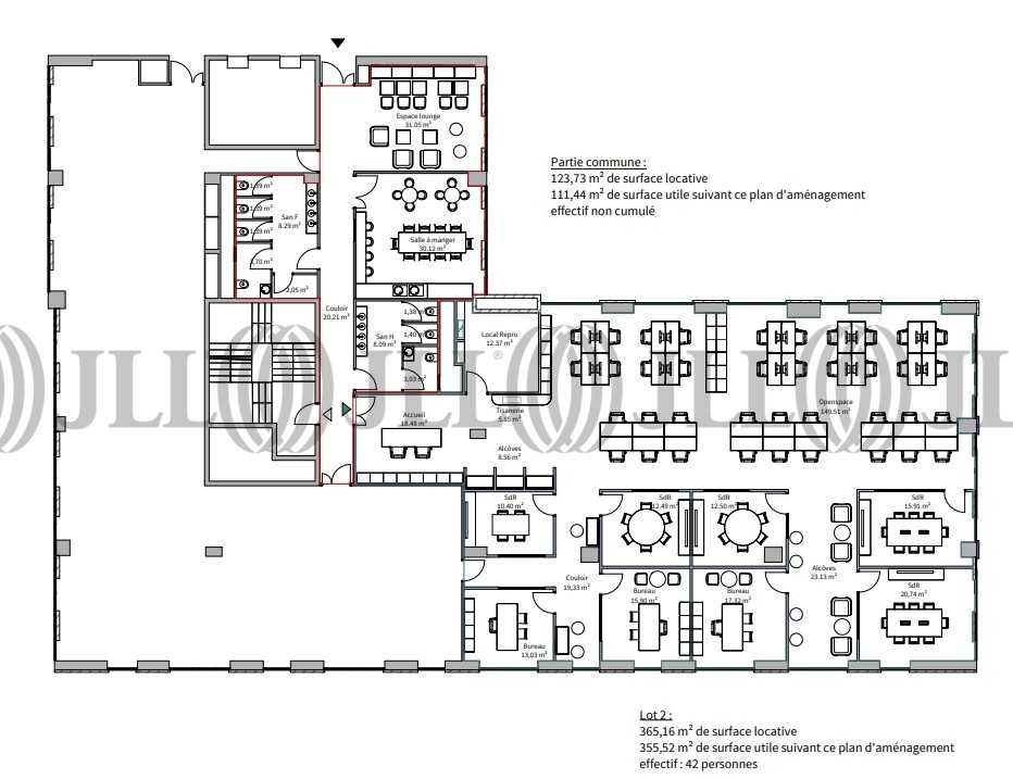
- Surface877 m² divisibles dès 348 m² (env. 87 postes)
- DisponibilitéImmédiate
- Description
- Prestations & Services
- DPE
- Localisation et Transports
- Plans
- Brochure
- Consultant
- Nous contacter
Description
A louer à Boulogne Billancourt (92100) au cœur du quartier du Trapèze, au sein d'un immeuble emblématique triplement certifié (HQE, BREEAM et BBC) une surface de bureaux au R+3 en très bon état d'usage. La surface est climatisée, lumineuse, possède des faux planchers et faux plafonds techniques, des fenêtres ouvrantes et une très belle hauteur sous plafond de 2,70 m. Un restaurant haut de gamme est disponible au rez-de-chaussée de l'immeuble. La situation offre un environnement récent et qualitatif, avec de nombreux commerces, parcs et lieux de ballade, non loin du Métro 9 "Billancourt" et de l'Ile Seguin.
Les informations sur les risques auxquels ce bien est exposé sont disponibles sur le site Géorisques : www.georisques.gouv.fr
Surface disponible
DPE
Diagnostic en cours de réalisation
Localisation et Transports
Consultant

Simon Jaffres
Détails de l'agent







