8-10 RUE DE LA FERME
BOULOGNE BILLANCOURT, 92100
320 € / m²
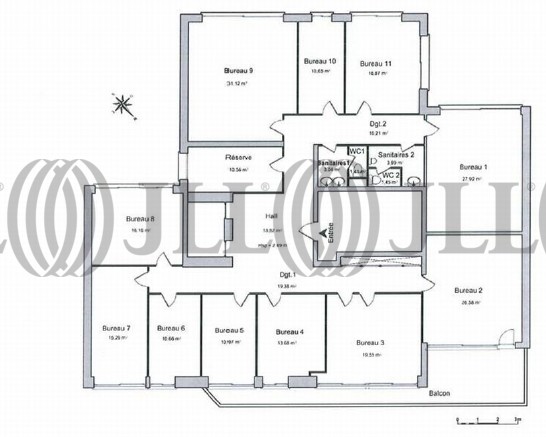
- Surface313 m² (env. 31 postes)
- DisponibilitéImmédiate
- Description
- Prestations & Services
- DPE
- Localisation et Transports
- Plan
- Brochure
- Consultant
Description
Bureaux à louer au 8-10 RUE DE LA FERME, BOULOGNE BILLANCOURT (92100).
Prospective locataires, ne cherchez plus! Notre immeuble de bureaux est idéalement situé dans le dynamique quartier de Boulogne Billancourt, avec des espaces disponibles immédiatement. Dans une surface totale de 313 m², ces bureaux offrent une flexibilité d'aménagement adaptée à divers besoins.
Pour assurer votre confort, les locaux sont équipés de contrôle d'accès intérieur, d'ascenseurs, d'une cuisine moderne et d'un système de climatisation double flux. Pour les hivers froids, les convecteurs électriques fournissent un chauffage efficace.
La mobilité est facilitée par des liens de transport en commun pertinents, avec le métro Billancourt (ligne 9) à proximité immédiate. De plus, le bâtiment est facilement accessible par le Pont de Sèvres, la N118 et l'A163, garantissant une connectivité efficace avec la région environnante.
Les informations sur les risques auxquels ce bien est exposé sont disponibles sur le site Géorisques : www.georisques.gouv.fr.
Optez pour un espace de travail fonctionnel, confortable et facilement accessible en plein cœur de Boulogne Billancourt. Profitez de la praticité de la ville tout en bénéficiant d'un cadre de travail adapté à votre activité.
Surface disponible
DPE
Diagnostic en cours de réalisation
Localisation et Transports
. Accès routiers : Pont de Sèvres, N118, A163
Consultant

Gauthier Daccord
Détails de l'agent







