LES PATIOS A
86-88 RUE THIERS
BOULOGNE BILLANCOURT, 92100
350 € / m²
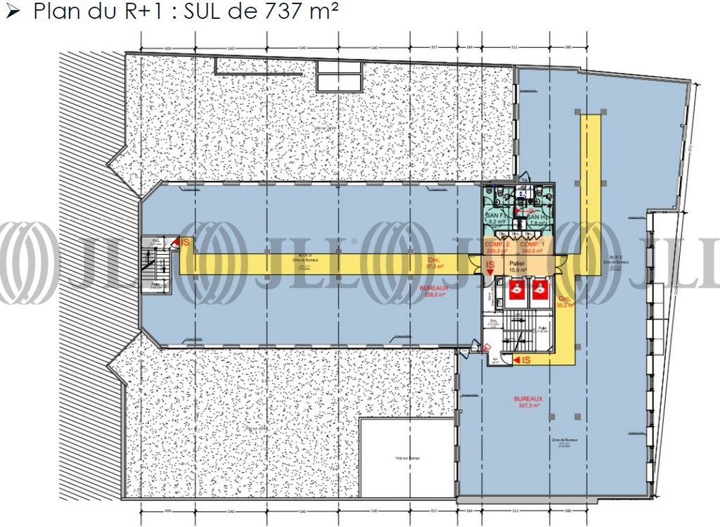
- Surface1 105 m² divisibles dès 128 m² (env. 110 postes)
- DisponibilitéImmédiate
- Description
- Prestations & Services
- DPE
- Localisation et Transports
- Plan
- Brochure
- Consultant
- Nous contacter
Description
Située à toute proximité de l’animation du centre-ville Marcel-Sembat à Boulogne-Billancourt, nous vous proposons dans un bel ensemble immobilier des surfaces de bureaux fonctionnelles, climatisées et rénovées. Vous bénéficierez d’un accueil rénové, d’une hôtesse d’accueil ainsi qu’un duplex d’ascenseurs desservant les étages et les parkings en sous-sol. L’immeuble Les Patios est accessible par le métro ligne 9 « Marcel Sembat » à 5 minutes à pied ainsi que par de nombreuses lignes de bus. Vous pouvez également rejoindre le périphérique parisien aisément à Porte de Saint Cloud.
Les informations sur les risques auxquels ce bien est exposé sont disponibles sur le site Géorisques : www.georisques.gouv.fr
Parking avec borne électrique Loyer : 1 400,00 €/U/an
Surface disponible
DPE
Localisation et Transports
. Bus : Lignes PC1, 62, 189, 289
Consultant

Simon Jaffres
Détails de l'agent







