Bureaux
Réf. 9964874 RUE MARAT
IVRY SUR SEINE, 94200
200 € / m²
- Surface384 m² (env. 38 postes)
- DisponibilitéImmédiate
- Description
- Prestations & Services
- DPE
- Localisation et Transports
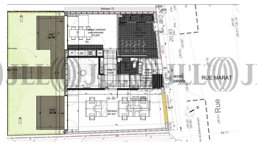
- Plans
- Brochure
- Consultant
- Nous contacter
Description
Bureaux à louer à Ivry-sur-Seine : JLL vous propose un immeuble indépendant de 384 m², situé au 74 rue Marat. Cet immeuble moderne offre des prestations de qualité, incluant un espace extérieur privatif (terrasse ou loggia) à chaque étage. A 6 min du métro 7 arrêt Mairie d’Ivry.
Les informations sur les risques auxquels ce bien est exposé sont disponibles sur le site Géorisques : www.georisques.gouv.fr
Taxe Foncière et taxe bureaux comprises dans les charges
Surface disponible
DPE
Diagnostic en cours de réalisation
Localisation et Transports
. Métro : Mairie d'Ivry (ligne 7) à 10 min à pied
. RER C : Ivry-sur-Seine à 15 min à pied
. RER C : Ivry-sur-Seine à 15 min à pied
Consultant

Hugo Cornet
Détails de l'agent
Informations Marchés
Le marché locatif
74 RUE MARAT, 94200
Loyer moyen *
200 € / m²
26 offres à louerEn savoir plus* Moyenne calculée sur la base des transactions réalisées au cours des 12 derniers mois







