
Commerces
Réf. 97997CHEMIN DU GRAND ROULE
74 CHEMIN DU GRAND ROULE
STE FOY LES LYON, 69110
Nous consulter
- Surface986 m²
- Disponibilité4e trim. 2026
- Description
- DPE
- Localisation et Transports
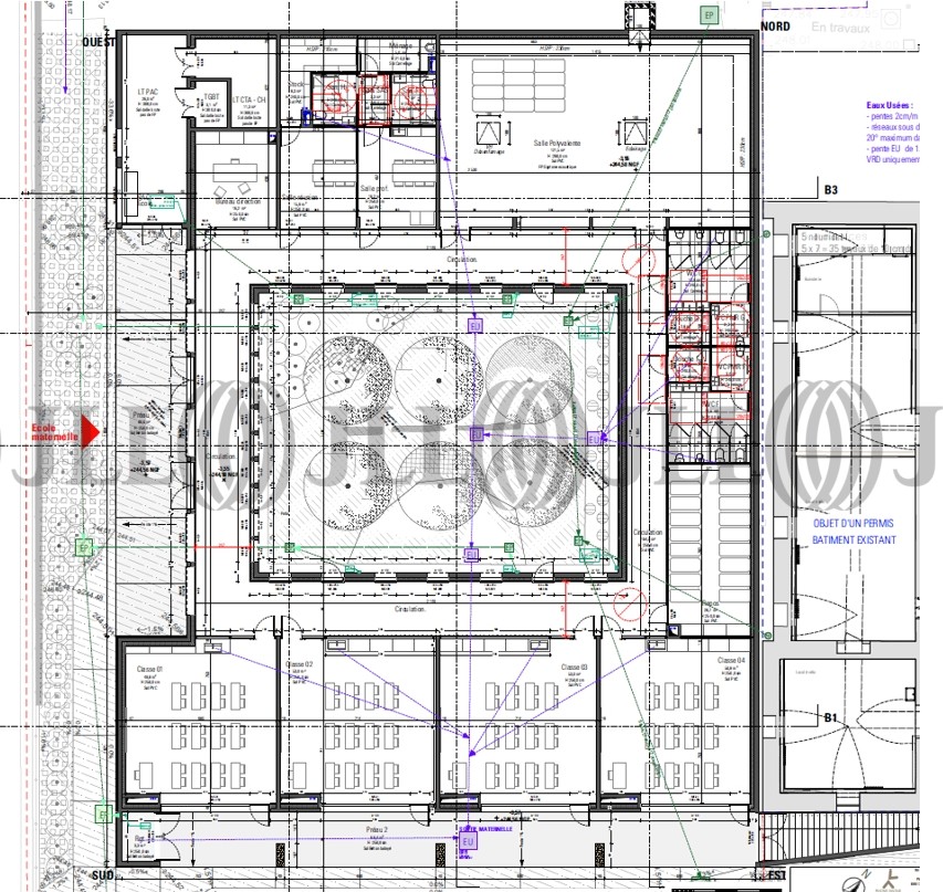
- Plan
- Brochure
- Consultant
- Nous contacter
Description
Dans le cadre de la rénovation de l’ancien séminaire des Pères Maristes à Sainte-Foy-Lès-Lyons, le promoteur Rhône Saône Habitat va créer un local de près de 1 000 m² dédié à des activités d’enseignement et de recherche. Le local sera livré neuf, au cœur de Sainte-Foy-Lès-Lyon dans une des zones de chalandise le plus aisées de l’agglomération lyonnaise.
Les informations sur les risques auxquels ce bien est exposé sont disponibles sur le site Géorisques : www.georisques.gouv.fr
Activité d’enseignement et de recherche
Surface disponible
DPE
Diagnostic en cours de réalisation
Localisation et Transports
Consultant

Cédric Ducarrouge
Détails de l'agent