Activités / Entrepôts
Réf. 95918Exclusivité JLL
6406 ROUTE DE CHEMIRE
LA SUZE SUR SARTHE, 72210
103,94 € / m²
- Surface36 557 m²
- DisponibilitéImmédiate
- Description
- Prestations & Services
- DPE
- Localisation et Transports
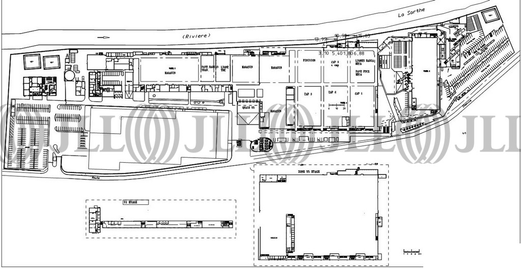
- Plan
- Brochure
- Consultant
- Nous contacter
Description
A VENDRE - La Suze sur Sarthe (72210) - Sarthe (72)
JLL vous propose, à la vente, un ensemble immobilier composé de bâtiments à usage de production industrielle et de bureaux, sur un terrain de 75.000 m² environ. Entrepôts fonctionnels bénéficiant d’une belle hauteur, de portes à quai / plain-pied et de nombreux emplacements de parking. Site clos et sécurisé accessible par gros porteurs, à proximité des axes autoroutiers (A11) et des transports en commun (train). Très belle opportunité JLL, à visiter rapidement !
Les informations sur les risques auxquels ce bien est exposé sont disponibles sur le site Géorisques : www.georisques.gouv.fr
Surface disponible
DPE
Diagnostic en cours de réalisation
Localisation et Transports
. SNCF : gare de La Suze à 1,5 km . Accès routiers : A11 à 15 min
Consultant

Olivier Durif
Détails de l'agent







