Activités / Entrepôts
Réf. 100243Nouveau
1 RUE CALMETTE
GENAS, 69740
1 871,16 € / m²
- Surface1 630 m²
- DisponibilitéImmédiate
- Description
- Prestations & Services
- DPE
- Localisation et Transports
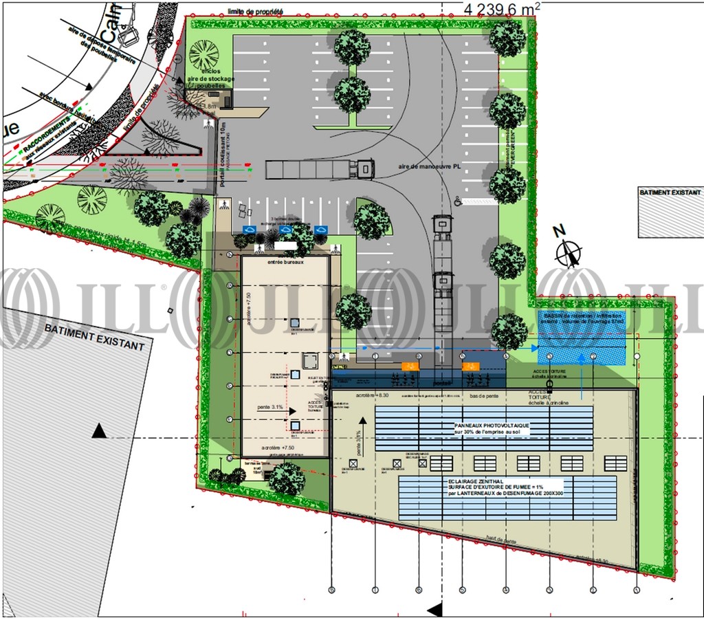
- Plan
- Brochure
- Consultant
- Nous contacter
Description
A VENDRE - GENAS (69740)
JLL vous propose à la vente un bâtiment mixte loué idéalement situé à Genas, au coeur du triangle d’or du tissu économique et industriel de la métropole lyonnaise.
A proximité immédiate des grands axes de communications et dans un écosystème dynamique.
Les informations sur les risques auxquels ce bien est exposé sont disponibles sur le site Géorisques : www.georisques.gouv.fr
Surface disponible
DPE
Diagnostic en cours de réalisation
Localisation et Transports
. Accès routier : E15 Rocade Est à 2 km
D306 à 2 km et A43 à 2,5 km
. Aéroport de Lyon Saint-Exupéry à 16 km
. Bus : ligne ZI5 – Arrêt Calmette - Mûriers à 0,4 km
. SNCF : gare de Lyon Part-Dieu SNCF à 16 km
D306 à 2 km et A43 à 2,5 km
. Aéroport de Lyon Saint-Exupéry à 16 km
. Bus : ligne ZI5 – Arrêt Calmette - Mûriers à 0,4 km
. SNCF : gare de Lyon Part-Dieu SNCF à 16 km
Consultant

Yohan Chiner
Détails de l'agent





