LOT MIXTE - CORBAS MONTMARTIN
7 AVENUE DE MONTMARTIN
CORBAS, 69960
1 584,16 € / m²
- Surface505 m²
- DisponibilitéImmédiate
- Description
- Prestations & Services
- DPE
- Localisation et Transports
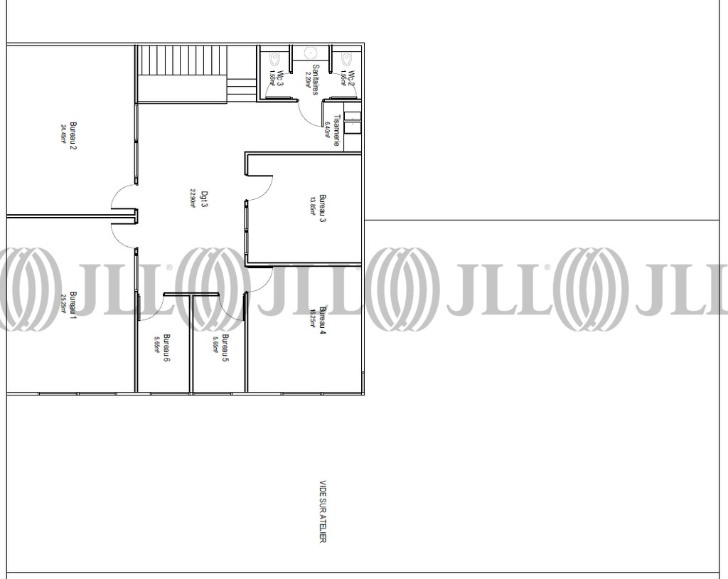
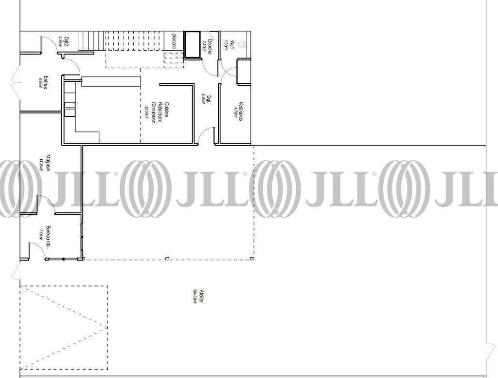
- Plans
- Brochure
- Consultant
- Nous contacter
Description
A VENDRE / INVESTISSEMENT - lot mixte - Corbas (69960) - Rhône (69)
JLL vous propose à la vente un superbe lot mixte, loué en bail 3/6/9, à usage d’activité / bureaux, au sein d'un parc rénové. Entrepôt fonctionnel bénéficiant d'une belle hauteur de 7,5m, d'une porte de plain-pied et d'emplacements de parking. Bureaux et locaux sociaux entièrement aménagés et équipés avec du mobilier sur mesure, très belles prestations ne nécessitant aucun aménagement. A proximité des axes autoroutiers (Rocade et Boulevard Urbain Sud). Très belle opportunité JLL !
Les informations sur les risques auxquels ce bien est exposé sont disponibles sur le site Géorisques : www.georisques.gouv.fr
Surface disponible
DPE
Diagnostic en cours de réalisation
Localisation et Transports
. SNCF : gare TGV Lyon - Saint Exupéry à 20 min . Bus : lignes 87, ZI1 . Accès routiers : Boulevard Urbain Sud, Rocade Est (A46), A43, A7
. Aéroport : Lyon - Saint Exupéry à 20 min
Consultant

Jules Dumontet
Détails de l'agent







