
Activités / Entrepôts
Réf. 99924PARC DES OLIVIERS - MASSE 2-CLE EN MAIN
ROUTE DE LYON
BOURGOIN JALLIEU, 38300
Nous consulter
- Surface2 500 m²
- DisponibilitéNous consulter
- Description
- Prestations & Services
- DPE
- Localisation et Transports
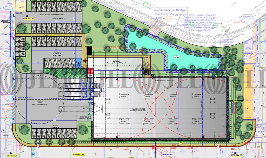
- Plan
- Brochure
- Consultant
- Nous contacter
Description
A VENDRE - Bourgoin-Jallieu (38300) - Nord Isère (38)
JLL vous propose, à la vente, un projet clé en main à usage d'activités / bureaux au sein d’un parc en développement de plus de trois hectares.
Le Parc des Oliviers est situé à Bourgoin-Jallieu, route de Lyon ; La proximité de l’autoroute A43 et de la départementale D1006 constituent des atouts importants pour ce nouveau parc d’activités.
Les informations sur les risques auxquels ce bien est exposé sont disponibles sur le site Géorisques : www.georisques.gouv.fr
Surface disponible
DPE
Diagnostic en cours de réalisation
Localisation et Transports
. TER : gare de L'Isle-D'Abeau à 3 km . Accès routier : A43 à 2km
Consultant

Jules Dumontet
Détails de l'agent