Bureaux
Réf. DM18525ALIZE
RUE DIANE FOSSEY
NORROY LE VENEUR, 57140
2 174,64 € / m²
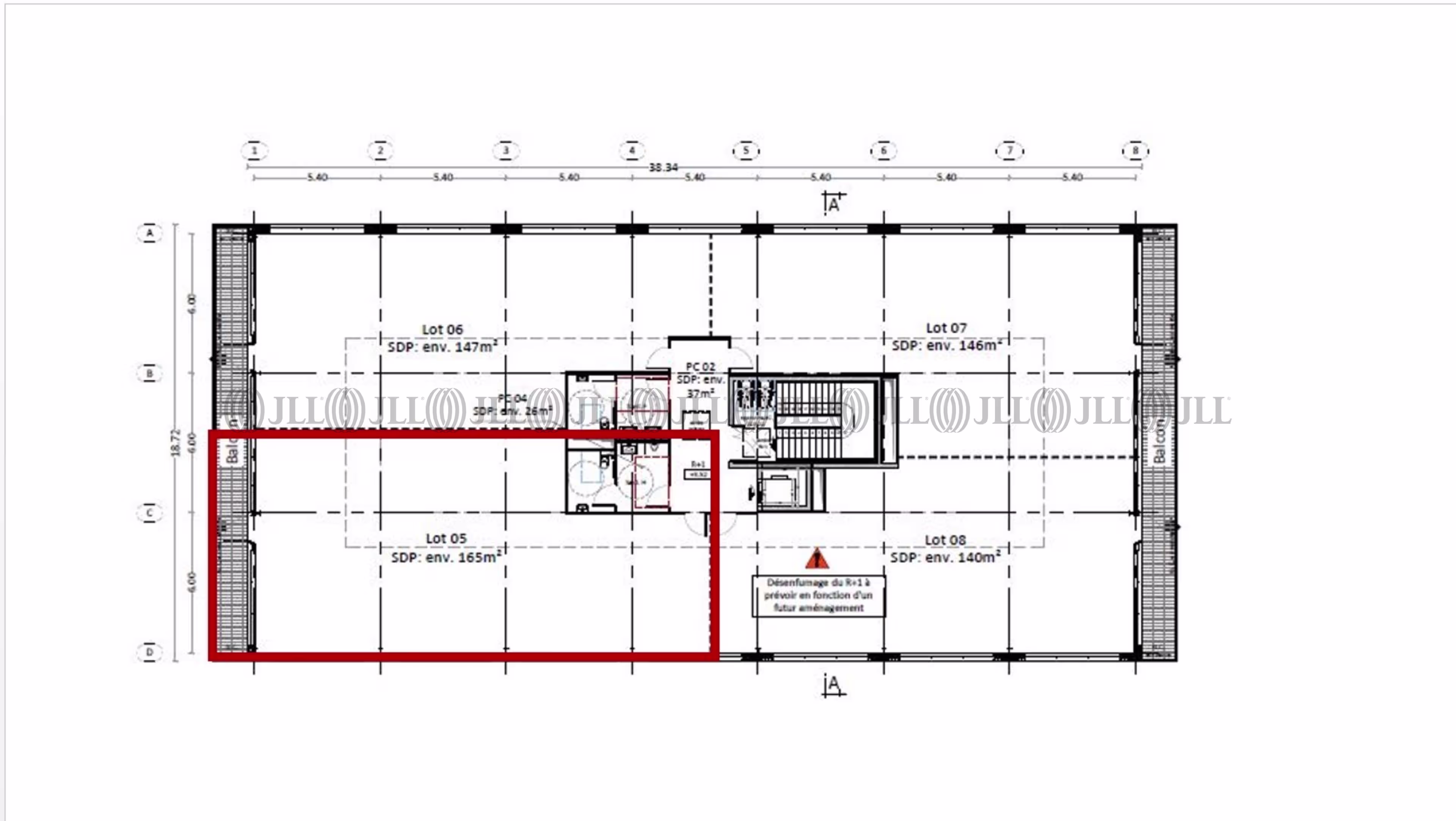
- Surface165 m² (env. 16 postes)
- DisponibilitéNous consulter
- Description
- DPE
- Localisation et Transports
- Brochure
- Consultant
- Nous contacter
Description
Idéalement situés au cÅ“ur de l'Ecoparc, ces 165 m² de bureaux neufs offrent un cadre verdoyant avec tout le confort du neuf !
. Ces bureaux du 1er étage, sont livrés aménagés et équipés (Cloisonnement à la demande à charge de l'acquéreur)
. Vitrage à haute sélectivité solaire
. Eclairage LED
. Sols et plafonds à haute performance acoustique
. Hors cloisonnement de bureaux
. Le plus : 7 places privatives de stationnement
Cette offre vous est proposée par notre partenaire Dumur Immobilier
DPE
Diagnostic en cours de réalisation
Localisation et Transports
- A NORROY LE VENEUR, ECOPARC, EMPLACEMENT STRATEGIQUE SUR UN SITE RECENT
- Dessertes directes aux autoroutes A4 et A31
- Desservi par les transports en commun (Bus TIM) - Gare Metz TGV à 10 minutes
- Nombreux services à proximité : commerces, 3 hôtels, restaurants, Zone Commerciale AUCHAN
- Dessertes directes aux autoroutes A4 et A31
- Desservi par les transports en commun (Bus TIM) - Gare Metz TGV à 10 minutes
- Nombreux services à proximité : commerces, 3 hôtels, restaurants, Zone Commerciale AUCHAN
Consultant

Dumur immobilier
Détails de l'agent



