Bureaux
Réf. 99586PARC EUROPE 2 - BATIMENT 10
340 AVENUE DE LA MARNE
MARCQ EN BAROEUL, 59700
2 868,06 € / m²
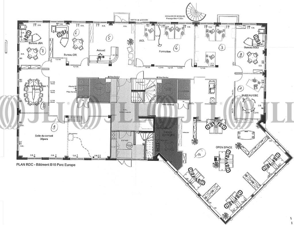
- Surface523 m² (env. 52 postes)
- Disponibilité2e trim. 2026
- Description
- Prestations & Services
- DPE
- Localisation et Transports
- Plan
- Brochure
- Consultant
- Nous contacter
Description
BUREAUX - A VENDRE - MARCQ-EN-BAROEUL
Surface de bureaux de 523 m² à vendre en rez-de-chaussée, accessible PMR et potentiellement adaptée aux ERP. Profitez de ce plateau idéalement positionné à proximité immédiate du tramway et des principaux axes de circulation.
Services hôteliers et de restauration dans l'environnement proche.
Les informations sur les risques auxquels ce bien est exposé sont disponibles sur le site Géorisques : www.georisques.gouv.fr
Prix de vente parkings inclus
Surface disponible
DPE
Diagnostic en cours de réalisation
Localisation et Transports
Tramway arrêt 'Château Rouge' à 550m (7 min à pied) Accès direct autoroute A22
Aéroport Lille Lesquin à 16 min en voiture
Aéroport Lille Lesquin à 16 min en voiture
Consultant

Quentin Masse
Détails de l'agent






