AVENUE CHARLES DE GAULLE ET DE LA RUE WINSTON CHUR
MACON, 71000
2 360 € / m²
- Surface3 266 m² divisibles dès 112 m² (env. 326 postes)
- DisponibilitéImmédiate
- Description
- DPE
- Localisation et Transports
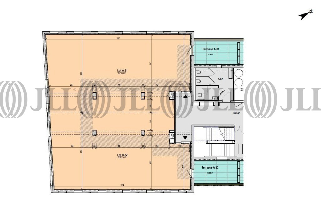
- Plans
- Brochure
- Consultant
- Nous contacter
Description
A vendre, bureaux sur programme neuf, secteur MACON CENTRE, d'une surface totale de 3 266m² environ divisibles à partir de 112m² environ. Bâtiment dernière génération, agrée ERP., idéalement situé sur axe passant, proximité accès A6, Gare SNCF, transports en commun au pied des bureaux ainsi que toutes commodités. Livraison 2ème trimestre 2024. Certification du programme immobilier : LE KWARTZ sera certifié BREEAM niveau Très bon. La certification britannique BREEAM, est le standard international pour évaluer l'impact environnemental d'un bâtiment. Développée par le Building Research Establishment (BRE) au Royaume Uni en 1990, elle est connue comme étant le premier système d'évaluation et de certification de la performance environnementale des bâtiments . Elle est aujourd'hui la certification de référence européenne dans l'immobilier commercial et est utilisée dans de nombreux pays. Elle tient compte des aspects techniques du bâtiment et elle prend également en considération les aspe
DPE
Diagnostic en cours de réalisation
Localisation et Transports
Consultant

Ncbc
Détails de l'agent







