
41 ALLEE DES CYPRES
LIMONEST, 69760
Nous consulter
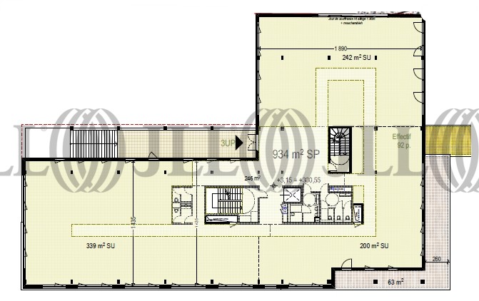
- Surface2 529 m² (env. 252 postes)
- DisponibilitéImmédiate
- Description
- Prestations & Services
- DPE
- Localisation et Transports
- Plans
- Brochure
- Consultant
- Nous contacter
Description
Bâtiment à vendre - Limonest,
Bâtiment indépendant à vendre en l'état situé au 4 allée des Cyprès à Limonest. D'une surface totale de 2 529 m², cet ensemble immobilier autonome dispose de parkings extérieurs et offre un potentiel intéressant pour divers projets professionnels ou de reconversion. Implanté dans l'Ouest lyonnais, le bien bénéficie d'une localisation stratégique avec une bonne accessibilité routière et un environnement propice au développement d'activités.
La vente en l'état permet à l'acquéreur d'envisager une adaptation complète des espaces selon ses besoins spécifiques.
Les informations sur les risques auxquels ce bien est exposé sont disponibles sur le site Géorisques : www.georisques.gouv.fr
Surface disponible
DPE
Diagnostic en cours de réalisation
Localisation et Transports
Bus 21 - 61 - 115 - 118 : arrêt La Gabrielle à 10 mn à pied
TCL à la demande (site www.TCL A LA DEMANDE) Accessibilité : par RN 6 -
Accès voie métropolitaine M6 à 1 00 m
Consultant

Nicolas Mainguy
Détails de l'agent