LE SIROCCO
5 ALLEE DES SEQUOIAS
LIMONEST, 69760
2 100 € / m²
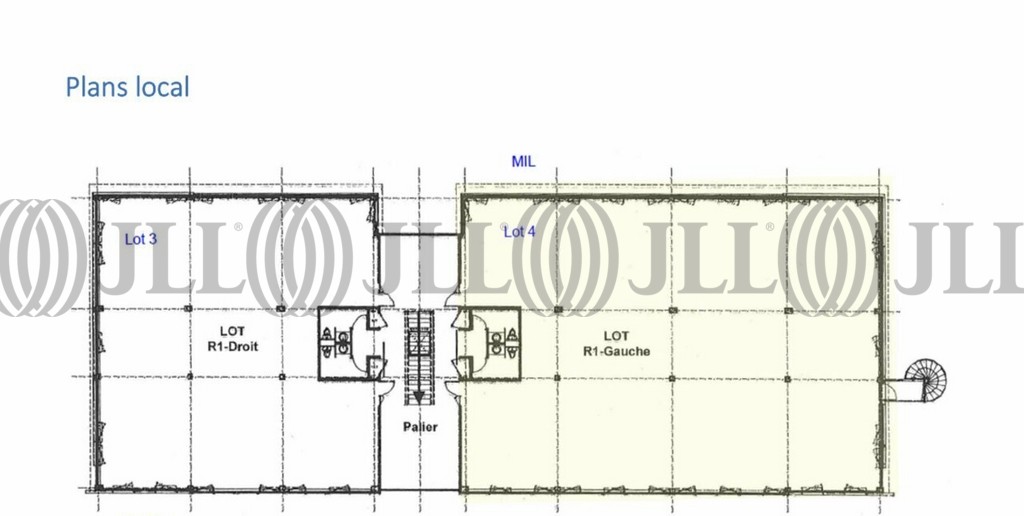
- Surface483 m² (env. 48 postes)
- Disponibilité4e trim. 2025
- Description
- Prestations & Services
- DPE
- Localisation et Transports
- Plan
- Brochure
- Consultant
- Nous contacter
Description
Bureaux à vendre à LE SIROCCO
Découvrez LE SIROCCO, un immeuble situé au 5 allée des Séquoias, à Limonest (69760). Cet espace propose une surface modulable de 483 m², idéal pour accueillir vos équipes dans un environnement pensé pour le confort au travail.
L’immeuble bénéficie d’équipements fonctionnels tels qu’un contrôle d'accès extérieur et un digicode, assurant sécurité et praticité. Les bureaux, en état d’usage, offrent des espaces lumineux, climatisés, et intégrant une cuisine pour plus de commodité.
Parfaitement accessible, LE SIROCCO est desservi par les lignes de bus 10 et GE4 ainsi que par les axes routiers D306 et A6, facilitant ainsi les déplacements de vos collaborateurs
Les informations sur les risques auxquels ce bien est exposé sont disponibles sur le site Géorisques : www.georisques.gouv.fr
Surface disponible
DPE
Diagnostic en cours de réalisation
Localisation et Transports
Consultant

Nicolas Mainguy
Détails de l'agent


