Bureaux
Réf. 100726Mise à jour
73-77 RUE JEAN PROUVE
LILLE, 59000
Nous consulter
- Surface366 m² (env. 36 postes)
- DisponibilitéImmédiate
- Description
- Prestations & Services
- DPE
- Localisation et Transports
- Plans
- Brochure
- Consultant
- Nous contacter
Description
BUREAUX - A VENDRE - LILLE
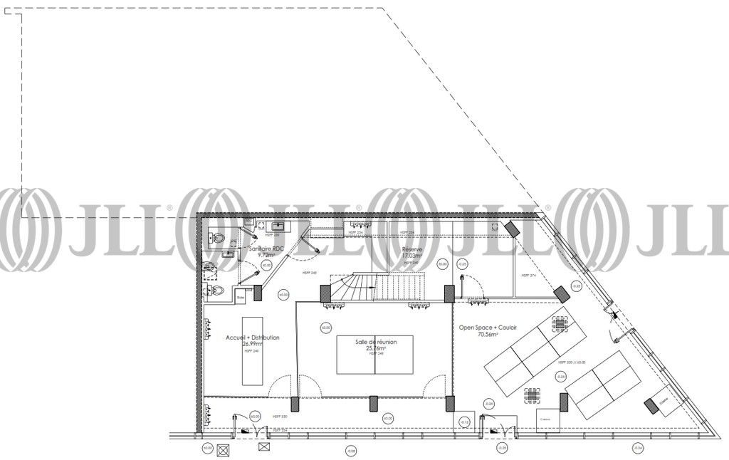
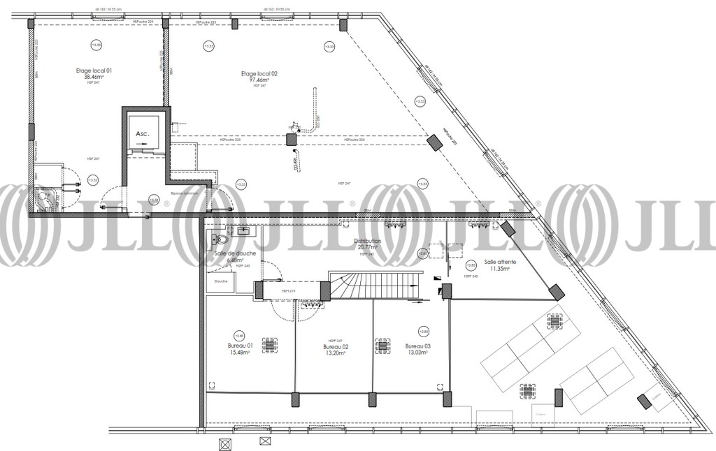
Dans un quartier dynamique de Lille, ces bureaux de 366 m² offrent un emplacement privilégié. Répartis sur deux niveaux (150 m² en rez-de-chaussée et 216 m² en mezzanine), ils disposent de cloisons vitrées et bénéficient d'un excellent état général.
L'accessibilité est optimale avec des bus à proximité immédiate,le métro à 450 m et un accès direct aux autoroutes A1 et A25.
Locaux disponibles immédiatement, non divisibles.
Les informations sur les risques auxquels ce bien est exposé sont disponibles sur le site Géorisques : www.georisques.gouv.fr
Prix de vente : nous consulter
Surface disponible
DPE
Diagnostic en cours de réalisation
Localisation et Transports
Bus lignes 18 et 52 arrêt 'G. Lyon' à 80m
Métro ligne 2 station 'Porte de Valenciennes' à 450m
Gares TGV Lille Europe et Lille Flandres à 10 min en métro
Accès direct autoroutes A1 et A25
Aéroport Lille Lesquin à 10 min en voiture
Métro ligne 2 station 'Porte de Valenciennes' à 450m
Gares TGV Lille Europe et Lille Flandres à 10 min en métro
Accès direct autoroutes A1 et A25
Aéroport Lille Lesquin à 10 min en voiture
Consultant

Sixtine Chombart
Détails de l'agent







