Bureaux
Réf. 7932493 BOULEVARD CARNOT
LILLE, 59000
2 415,45 € / m²
- Surface1 242 m² (env. 124 postes)
- DisponibilitéImmédiate
- Description
- Prestations & Services
- DPE
- Localisation et Transports
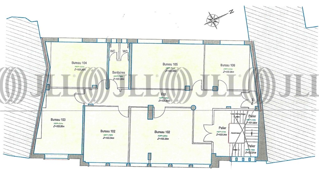
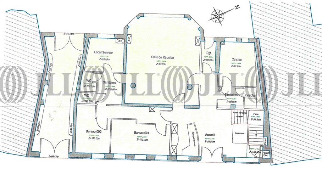
- Plans
- Brochure
- Consultant
- Nous contacter
Description
BUREAUX - A VENDRE - EURALILLE
Opportunité à saisir à Lille - A 5 min de la Grand’Place et de la Gare Lille Flandres, nous vous proposons un immeuble indépendant de 6 étages de 1 400 m² environ (surface utile) à l’entrée de Lille à vendre en l’état.
Potentialité de surélévation d’un étage. Ascenseur et escalier central servant les plateaux d’environ 200 m², traversant sur le boulevard Carnot et la cour intérieure. 17 places de parking.
Idéal pour coworking, hôtel, logements...
Les informations sur les risques auxquels ce bien est exposé sont disponibles sur le site Géorisques : www.georisques.gouv.fr
Surface disponible
DPE
Diagnostic en cours de réalisation
Localisation et Transports
METRO : Lignes 1 et 2 à 500m SNCF : Gares TGV Lille Flandres à 500m et Lille Europe à 750m BUS : Lignes 10, 14, 51, 86, 88, L90 et L91 au pied de l'immeuble TRAMWAY : Station à 500m
Consultant

Charlotte Ghesquiere
Détails de l'agent





