Bureaux
Réf. 88222WORKIN
RUE GAMBETTA
LAMBERSART, 59130
3 200 € / m²
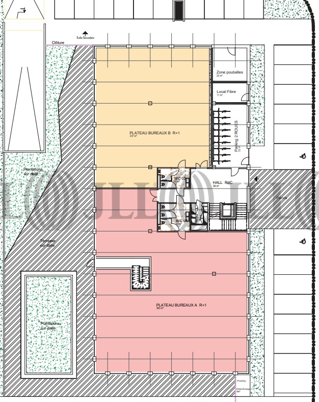
- Surface2 540 m² divisibles dès 300 m² (env. 254 postes)
- DisponibilitéNous consulter
- Description
- Prestations & Services
- DPE
- Localisation et Transports
- Plans
- Brochure
- Consultant
- Nous contacter
Description
BUREAUX NEUFS - A VENDRE - LAMBERSART
En extension du parc d'affaires du Pont Royal, le long de la Deûle.
Les informations sur les risques auxquels ce bien est exposé sont disponibles sur le site Géorisques : www.georisques.gouv.fr
Surface disponible
DPE
Diagnostic en cours de réalisation
Localisation et Transports
Bus : 3 arrêts à 300 mètres (L10 et 51) desservent le Vieux Lille, gares et métros en 8 min
A proximité des grands axes : A25, A1, A22, rocade Nord-Ouest
Accès vélo facilité : A 5 minutes du vieux Lille, d’Euralille et à 11 minutes des gares TGV et métro
A proximité des grands axes : A25, A1, A22, rocade Nord-Ouest
Accès vélo facilité : A 5 minutes du vieux Lille, d’Euralille et à 11 minutes des gares TGV et métro
Consultant

Quentin Masse
Détails de l'agent


