MI PARK - BATIMENT D
6 RUE D ARSONVAL
CHASSIEU, 69680
2 500 € / m²
- Surface370 m² (env. 37 postes)
- DisponibilitéImmédiate
- Description
- Prestations & Services
- DPE
- Localisation et Transports
- Plan
- Brochure
- Consultant
- Nous contacter
Description
Bureaux à vendre - CHASSIEU (69680)
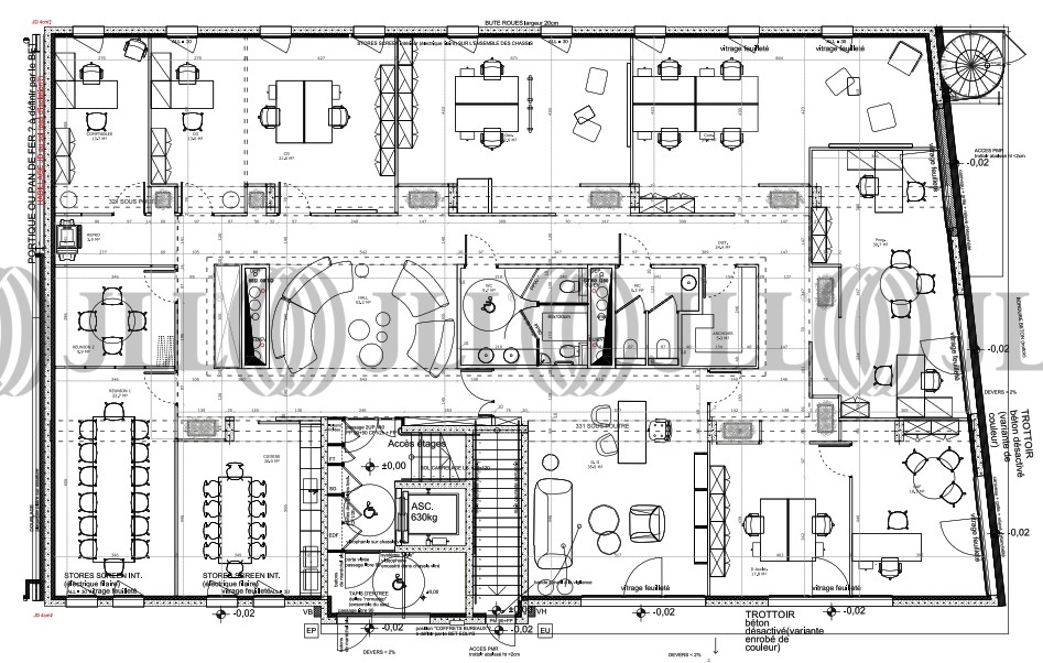
JLL vous propose 370 m² de bureaux à vendre au cœur de la zone industrielle de Chassieu, dans un immeuble neuf construit en 2022. Les locaux en excellent état disposent d'un agencement cloisonné avec cuisine équipée et bénéficient de nombreuses places de stationnement, dont une place électrique en sous-sol et un emplacement PMR en extérieur.
L'immeuble dispose d'un contrôle d'accès par visiophone et d'un ascenseur. Les bureaux câblés et climatisés intègrent des équipements modernes avec stores électriques, pavés LED et moquette. Le système de ventilation par centrale double flux à récupération d'énergie génère une économie d'énergie de 20 % sur le chauffage, complété par une climatisation réversible et des plinthes périphériques.
La zone industrielle de Mi-Plaine offre une situation géographique exceptionnelle avec un accès immédiat aux axes autoroutiers majeurs : A43 vers Grenoble, A46 vers Paris et A7 vers Marseille via la rocade Est de Lyon située à 500 mètres. Le centre de séminaires et de congrès Eurexpo (140 000 m² couverts) jouxte le site, tandis que la proximité de l'aéroport Lyon Saint-Exupéry et de la ligne TGV constituent des atouts stratégiques supplémentaires.
Les informations sur les risques auxquels ce bien est exposé sont disponibles sur le site Géorisques : www.georisques.gouv.fr
Surface disponible
DPE
Diagnostic en cours de réalisation
Localisation et Transports
. Aéroport : Lyon-Saint-Exupéry à 15 min
Consultant
Caroline Martin
Détails de l'agent







