
Commerces
Réf. 97994CHEMIN DU GRAND ROULE
74 CHEMIN DU GRAND ROULE
STE FOY LES LYON, 69110
Nous consulter
- Surface261 m²
- DisponibilitéNous consulter
- Description
- DPE
- Localisation et Transports
- Plan
- Brochure
- Consultant
- Nous contacter
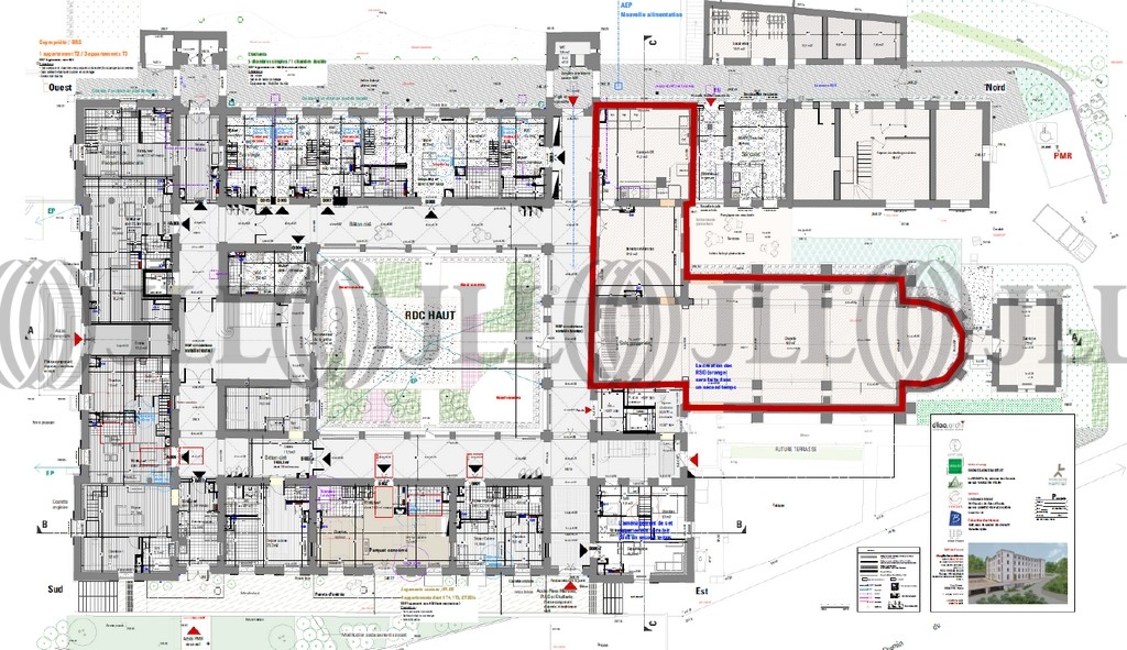
Description
Dans le cadre de la rénovation de l’ancien séminaire des Pères Maristes à Sainte-Foy-Lès-Lyons, nous proposons à la location un lieu d’exception : une chapelle de 182 m² et son annexe équipée d’une gaine d’extraction. La commune de Sainte-Foy-Lès-Lyon est située à proximité immédiate de Lyon et bénéficie d’une des populations le plus aisées de l’agglomération.
Les informations sur les risques auxquels ce bien est exposé sont disponibles sur le site Géorisques : www.georisques.gouv.fr
Loyer global annuel (HT/HC) : 46 880,00 €
Charges annuelles (HT) : 5 220,00 € HT (montant estimatif)
Pas de restriction d’activité
Surface disponible
DPE
Diagnostic en cours de réalisation
Localisation et Transports
Consultant

Cédric Ducarrouge
Détails de l'agent