
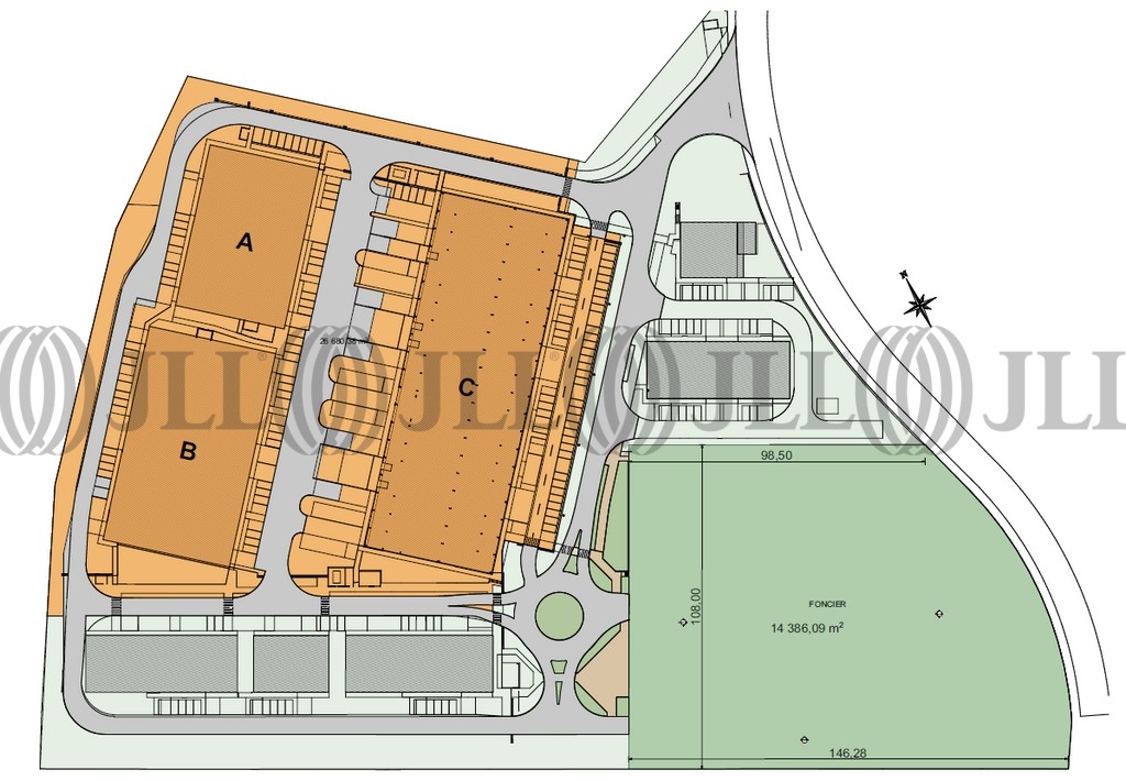
PROJET - ECOPARC DU LYONNAIS - TERRAIN B
48 RUE DU LYONNAIS
ST PRIEST, 69800
Nous consulter
- Surface20 000 m²
- DisponibilitéNous consulter
- Description
- DPE
- Localisation et Transports
- Plan
- Brochure
- Consultant
- Nous contacter
Description
A LOUER - Lyon Est / Mi Plaine - Saint Priest (69800) - Rhône (69)
JLL vous propose, à la location, une opportunité foncière : un terrain de 20 000 m² pour développer un clé en main à usage d'activité / bureaux.
Surfaces et aménagements adaptables selon les besoins de l'utilisateur.
Site accessible par gros porteurs, à proximité des axes autoroutiers (BP, A43, A46, BU Sud, A7) et des transports en commun (bus, métro, tramway, train).
Surfaces et aménagements adaptables selon les besoins de l'utilisateur, très belle opportunité JLL !
!
Les informations sur les risques auxquels ce bien est exposé sont disponibles sur le site Géorisques : www.georisques.gouv.fr
Surface disponible
DPE
Diagnostic en cours de réalisation
Localisation et Transports
. SNCF : gare TGV Lyon Part-Dieu
. Bus : lignes 62, C25
. Tramway T4 : Vénissieux
. Accès routiers : BP Laurent Bonnevay, A43, Rocade Est, Boulevard Urbain Sud, A7
. Aéroport de Lyon St Exupéry à 20 min ou de Bron à proximité
Consultant

Yohan Chiner
Détails de l'agent