Commerces
Réf. 100242LES COMPLICES DE FLORE
34-34BIS RUE SAINT FERREOL
MARSEILLE, 13001
Nous consulter
- Surface65 m²
- Disponibilité3e trim. 2026
- Description
- DPE
- Localisation et Transports
- Plan
- Brochure
- Consultant
- Nous contacter
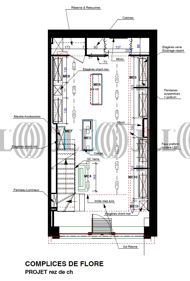
Description
Idéalement situé rue Saint Ferréol, ce local commercial de 80 m² se répartit sur deux niveaux avec 45 m² de surface de vente au rez-de-chaussée et 20 m² au premier étage, complétés par 15 m² de réserves. Parfait pour une activité de commerce de détail, cet emplacement bénéficie de la forte attractivité de cette artère commerçante majeure de Marseille.
Les informations sur les risques auxquels ce bien est exposé sont disponibles sur le site Géorisques : www.georisques.gouv.fr
Loyer global annuel (HT/HC) : 24 000,00 €
Prix de cession (HD) : 120 000,00 €
Surface disponible
DPE
Diagnostic en cours de réalisation
Localisation et Transports
. Métro : Vieux Port (ligne D)
. Tramway : Cours Saint-Louis
. SNCF : Marseille Saint-Charles à 10 minutes en métro
. Tramway : Cours Saint-Louis
. SNCF : Marseille Saint-Charles à 10 minutes en métro
Consultant
Julie Froger
Détails de l'agent






