WISSOUS, 91320
61,42 € / m²
- Surface407 m²
- DisponibilitéImmédiate
- Description
- Prestations & Services
- DPE
- Localisation et Transports
- Plans
- Brochure
- Consultant
- Nous contacter
Description
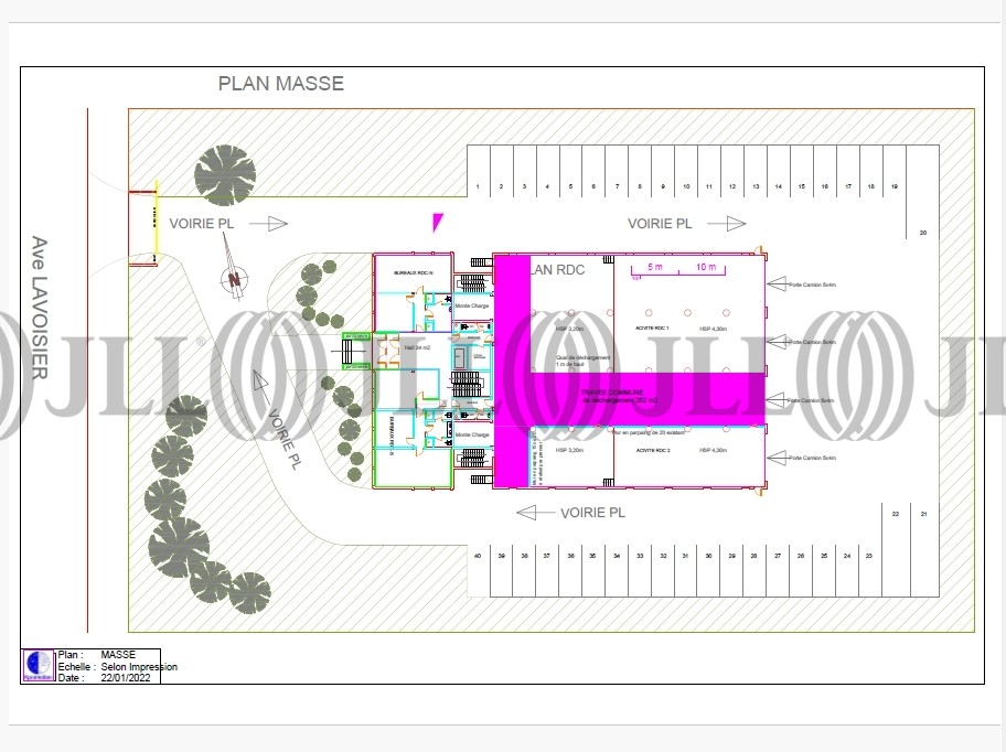
À louer – Wissous (91) – Cellule d’activités et bureaux de 407 m². Cette surface disponible immédiatement est idéale pour une PME souhaitant s’implanter dans le sud parisien. Les locaux en bon état offrent une organisation efficace avec bureaux et zone d’activités pouvant être loués séparément. Hauteur sous plafond de 3,2 m, accès quai de chargement, aire de manœuvre poids lourds et monte-charge 2 tonnes pour faciliter la logistique. Structure béton, couverture bac acier, dalle béton pour une exploitation optimale. Localisation stratégique : à moins de 20 minutes de la Porte d’Orléans, accès rapide A6, A10 et N20, desservi par RER B et C (station Massay Palaiseau). Contactez-nous dès maintenant pour organiser une visite. Loyer : 61 €/m²/an HT/HC. Bail commercial 3-6-9 ans ou bail précaire possible, indexation ILAT
Les informations sur les risques auxquels ce bien est exposé sont disponibles sur le site Géorisques : www.georisques.gouv.fr
Charges entrepôt : 14,40 € HT
Charges Bureaux : 36,84 € HT
Bureaux et entrepôt louables séparément
Surface disponible
DPE
Diagnostic en cours de réalisation
Localisation et Transports
Consultant

Alexandre Piriou
Détails de l'agent



