PROJET - ECOPARC DU LYONNAIS
48 RUE DU LYONNAIS
ST PRIEST, 69800
Nous consulter
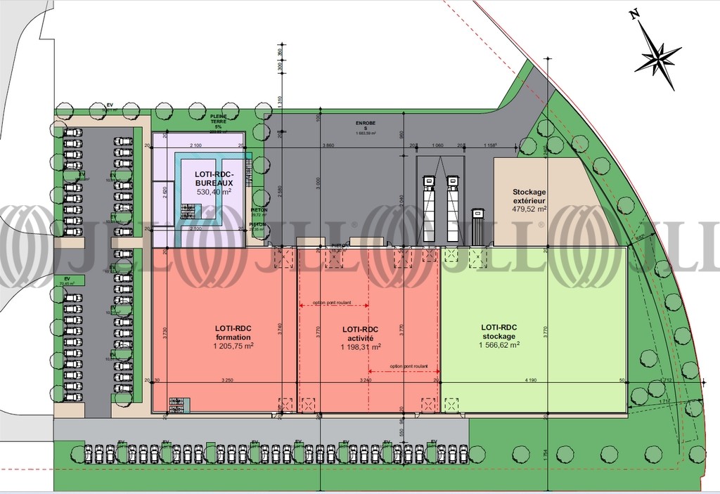
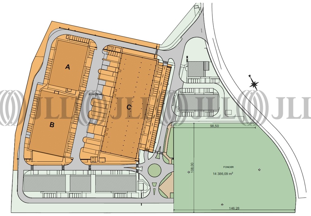
- Surface5 511 m²
- DisponibilitéNous consulter
- Description
- Prestations & Services
- DPE
- Localisation et Transports
- Plans
- Brochure
- Consultant
- Nous contacter
Description
A LOUER - Lyon Est / Mi Plaine - Saint Priest (69800) - Rhône (69)
JLL vous propose, à la location, sur la commune de St Priest, dans un territoire extrêmement recherché, un bâtiment neuf à usage d'activités / bureaux, sur un terrain de 14 000 m² environ. Entrepôt fonctionnel bénéficiant d'une belle hauteur, de portes à quai / plain pied et d'emplacements de parkings.
Site accessible par gros porteurs, à proximité des axes autoroutiers (BP, A43, A46, BU Sud, A7) et des transports en commun (bus, métro, tramway, train).
Surfaces et aménagements adaptables selon les besoins de l'utilisateur, très belle opportunité JLL !
Les informations sur les risques auxquels ce bien est exposé sont disponibles sur le site Géorisques : www.georisques.gouv.fr
Surface disponible
DPE
Diagnostic en cours de réalisation
Localisation et Transports
. SNCF : gare TGV Lyon Part-Dieu
. Bus : lignes 62, C25
. Tramway T4 : Vénissieux
. Accès routiers : BP Laurent Bonnevay, A43, Rocade Est, Boulevard Urbain Sud, A7
. Aéroport de Lyon St Exupéry à 20 min ou de Bron à proximité
Consultant

Yohan Chiner
Détails de l'agent

