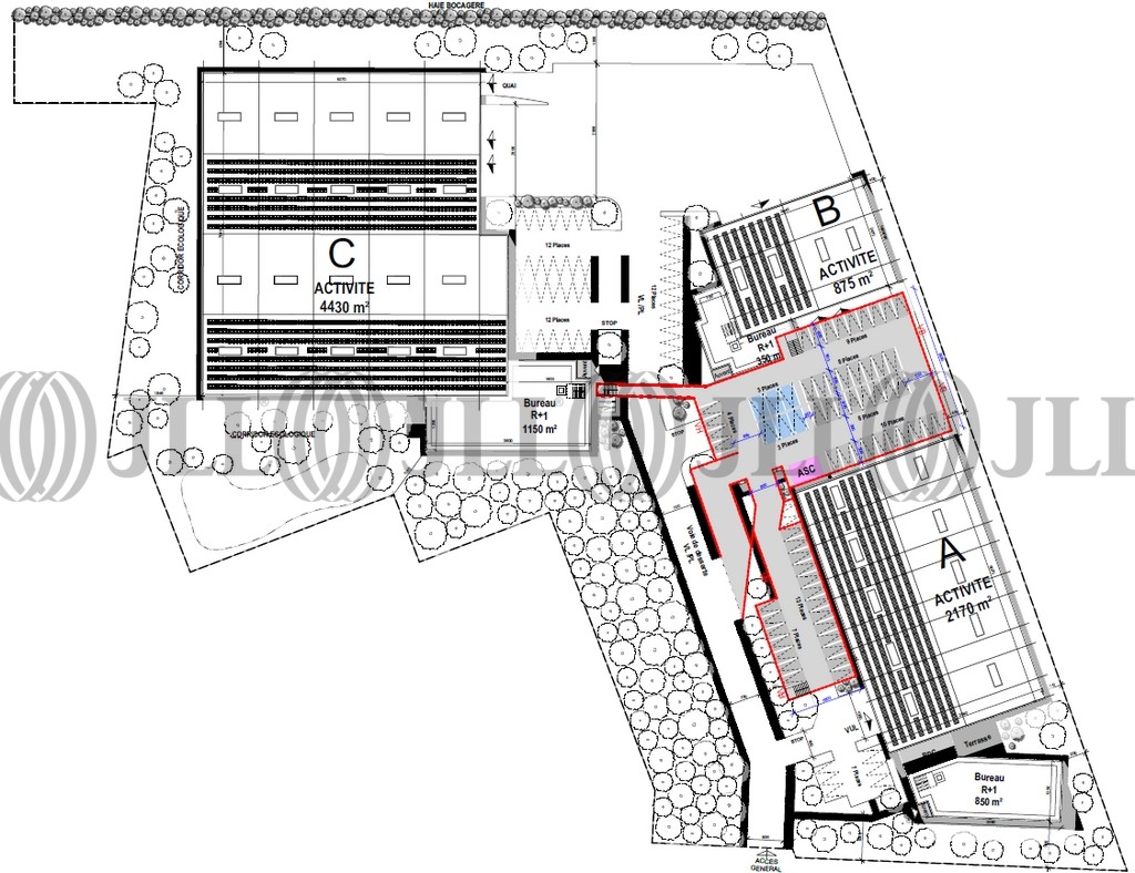
PARC EUROGAL 2 - BATIMENT B
99 ROUTE D HEYRIEUX
ST PRIEST, 69800
101,81 € / m²
- Surface983 m²
- Disponibilité4e trim. 2026
- Description
- Prestations & Services
- DPE
- Localisation et Transports
- Plans
- Brochure
- Consultant
- Nous contacter
Description
A LOUER - Saint Priest (69800) - Rhône (69)
JLL vous propose, à la location, des locaux à usage d’activité / stockage avec bureaux d’accompagnement, au sein d'un parc d'activités neuf. Entrepôt fonctionnel bénéficiant de portes sectionnelles de plain-pied et de nombreux emplacements de parking. Site accessible par gros porteurs, à proximité des axes autoroutiers (A46, A43) et des transports en commun (bus, train, tramway). Certification BREEAM Excellent, très belle opportunité JLL !
Les informations sur les risques auxquels ce bien est exposé sont disponibles sur le site Géorisques : www.georisques.gouv.fr
Loyer :
- Activité : 90 €/m² HT/HC
- Bureaux : 135 €/m² HT/HC
- Bureaux cloisonnés câblés : 145 €/m² HT/HC
- Parking avec borne de recharge : 100 €/U en supplément
Charges : 5% du loyer HT
emplacements de stationnement IRVE au sous-sol
Surface disponible
DPE
Diagnostic en cours de réalisation
Localisation et Transports
. Aéroport : Lyon-Saint-Exupéry à 15 min
Consultant

Yohan Chiner
Détails de l'agent







