Activités / Entrepôts
Réf. 88558PARC EUROGAL
119 ROUTE D HEYRIEUX
ST PRIEST, 69800
110,60 € / m²
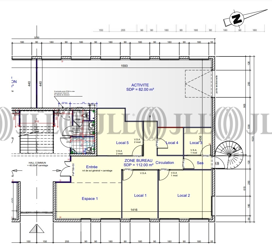
- Surface217 m²
- DisponibilitéImmédiate
- Description
- Prestations & Services
- DPE
- Localisation et Transports
- Plans
- Brochure
- Consultant
- Nous contacter
Description
A LOUER - St Priest (69800) - Rhône (69)
JLL vous propose, à la location, des locaux à usage d’activité / stockage avec bureaux d’accompagnement, au sein d'un parc d'activités. Entrepôt fonctionnel bénéficiant d’une belle hauteur, d'une porte sectionnelle de plain-pied et d'emplacements de parking. Site à proximité des axes autoroutiers (A46, A43, BU Sud, A7) et des transports en commun (bus, train).
Les informations sur les risques auxquels ce bien est exposé sont disponibles sur le site Géorisques : www.georisques.gouv.fr
Charges : 5% du loyer HT
Surface disponible
DPE
Diagnostic en cours de réalisation
Localisation et Transports
. Aéroport : Lyon-Saint Exupéry à 15 minutes
. SNCF : TGV Lyon-Saint Exupéry à 15 minutes
. Lyon Centre et Gares TGV à 15 minutes.
. Accès routiers : A46, sortie 12 Les Meurières St Priest.
. Route d'Heyrieux.
. Connexion rapide vers A43, Boulevard Urbain Sud et A7.
. SNCF : TGV Lyon-Saint Exupéry à 15 minutes
. Lyon Centre et Gares TGV à 15 minutes.
. Accès routiers : A46, sortie 12 Les Meurières St Priest.
. Route d'Heyrieux.
. Connexion rapide vers A43, Boulevard Urbain Sud et A7.
Consultant

Jules Dumontet
Détails de l'agent






