Activités / Entrepôts
Réf. 100485Mise à jour
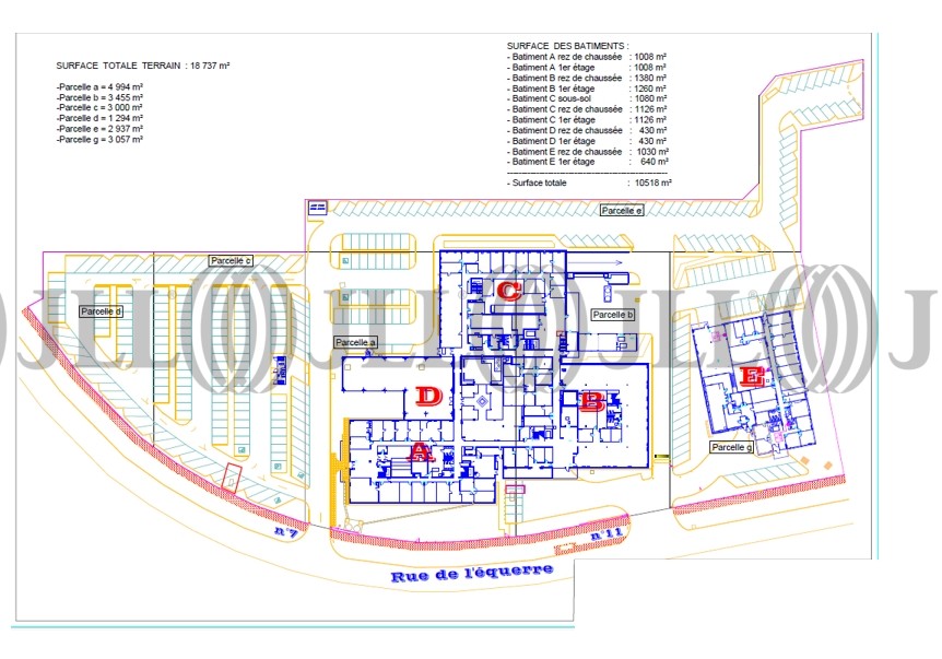
11 RUE DE L'EQUERRE
ST OUEN L AUMONE, 95310
113,63 € / m²
- Surface1 320 m²
- DisponibilitéImmédiate
- Description
- Prestations & Services
- DPE
- Localisation et Transports
- Plan
- Brochure
- Consultant
- Nous contacter
Description
Parcelle = 4379m²
Les informations sur les risques auxquels ce bien est exposé sont disponibles sur le site Géorisques : www.georisques.gouv.fr
TAXES :
11959.20 euros = taxe foncière
1751.82 euros = taxe bureaux
4063 euros = taxe parking
Surface disponible
DPE
Diagnostic en cours de réalisation
Localisation et Transports
RER A: station "Cergy Préfecture"
RER C : "St Ouen l'Aumône-Liesse"
BUS : Optile 58 et 95-17
Accès routiers : A15 - A115 - A16 - N14
RER C : "St Ouen l'Aumône-Liesse"
BUS : Optile 58 et 95-17
Accès routiers : A15 - A115 - A16 - N14
Consultant

Anne-laure Taupiac
Détails de l'agent







