
Activités / Entrepôts
Réf. 97715PARC MARSEILLE SUD - BAT A
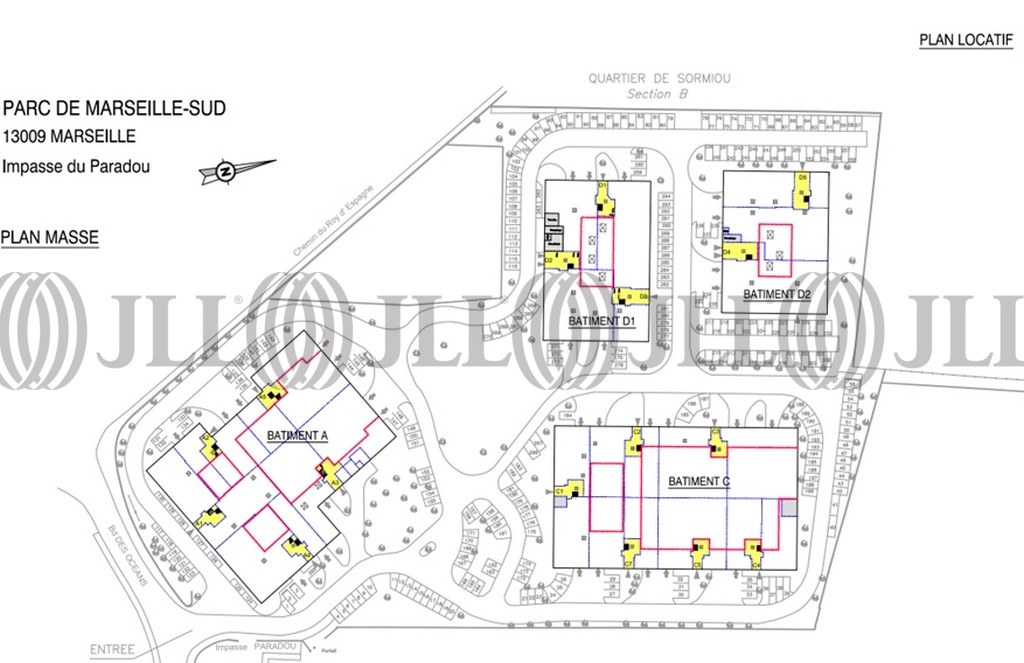
1 IMPASSE DU PARADOU
MARSEILLE, 13009
130 € / m²
- Surface180 m²
- DisponibilitéImmédiate
- Description
- Prestations & Services
- DPE
- Localisation et Transports
- Plan
- Brochure
- Consultant
- Nous contacter
Description
A louer, JLL vous propose, au sein d'un parc d'activités clos et sécurisé, un local dans le 9ème arrondissement de Marseille entre le quartier de Bonneveine et du Roy d'Espagne.
Ce parc bénéficie d'un environnement arboré et agréable proposant de nombreuses places de parking. Le site est accessible par PL et VL et les cellules se prêtent parfaitement à des activités PME/PMI, de stockage ou d'atelier par exemple. N'hésitez pas à nous contacter pour plus d'informations.
Les informations sur les risques auxquels ce bien est exposé sont disponibles sur le site Géorisques : www.georisques.gouv.fr
Surface disponible
DPE
Diagnostic en cours de réalisation
Localisation et Transports
. Nombreux bus vers la gare de Marseille Saint-Charles
. Tunnel Prado-Carénage vers Centre-Ville et Marseille Nord
. Accès routiers : A50, A55
. Aéroport de Marseille-Provence à 20 min
. Tunnel Prado-Carénage vers Centre-Ville et Marseille Nord
. Accès routiers : A50, A55
. Aéroport de Marseille-Provence à 20 min
Consultant

Maxime Bonnetier
Détails de l'agent