Activités / Entrepôts
Réf. 93910BATIMENT A
525 CHEMIN DE CHARPENAY
JANNEYRIAS, 38280
95 € / m²
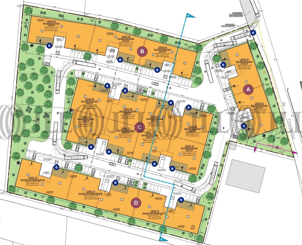
- Surface1 266 m² divisibles dès 633 m²
- DisponibilitéImmédiate
- Description
- Prestations & Services
- DPE
- Localisation et Transports
- Plans
- Brochure
- Consultant
- Nous contacter
Description
A LOUER - Janneyrias (38280) - Isère (38)
JLL vous propose, à la location, des locaux à usage d’activité / stockage avec bureaux d’accompagnement, au sein d'un parc d'activités neuf. Entrepôts fonctionnels bénéficiant d’une belle hauteur, de portes sectionnelles de plain-pied et d'emplacements de parking. Site clos et sécurisé accessible par gros porteurs, à proximité des axes autoroutiers (A432, A42, A43) et des transports en commun (bus, train). Très belle opportunité JLL !
Les informations sur les risques auxquels ce bien est exposé sont disponibles sur le site Géorisques : www.georisques.gouv.fr
Surface disponible
DPE
Diagnostic en cours de réalisation
Localisation et Transports
. SNCF : gare TGV Lyon-Saint-Exupéry à 10 min . Bus : ligne X04 . Accès routiers : A432, A42, A43
. Aéroport : Lyon-Saint-Exupéry à 10 min
. Aéroport : Lyon-Saint-Exupéry à 10 min
Consultant

Jules Dumontet
Détails de l'agent





