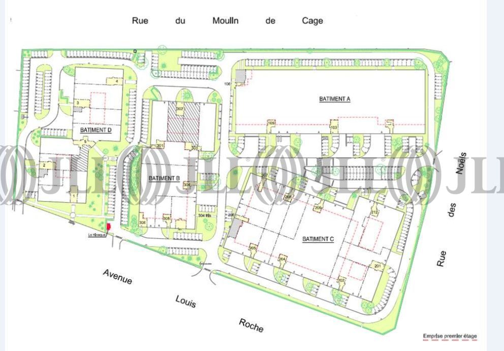
PARC LOUIS ROCHE - BAT C
86-114 AVENUE LOUIS ROCHE
GENNEVILLIERS, 92230
160 € / m²
- Surface3 549 m² divisibles dès 153 m²
- DisponibilitéImmédiate
- Description
- Prestations & Services
- DPE
- Localisation et Transports
- Plans
- Brochure
- Consultant
- Nous contacter
Description
A louer, à Gennevilliers (92), à proximité des quais de Seine, au sein d'un parc d'activités développant 30.000 m² sur 4 bâtiments, des lots d'entrepôts et de bureaux.
A 10 minutes de Paris et de la Défense.
Les informations sur les risques auxquels ce bien est exposé sont disponibles sur le site Géorisques : www.georisques.gouv.fr
-Charges locatives prévisionnelles (y compris honoraires de gestion et assurances immeuble) : En cours
-Taxe annuelle sur les emplacements de stationnement : En cours
-Taxe annuelle sur les locaux de bureaux : En cours
-Taxe annuelle sur les locaux d'activité et de stockage : En cours
-Impôt foncier prévisionnel (2022 ( TEOM incluse) : En cours
Surface disponible
DPE
Diagnostic en cours de réalisation
Localisation et Transports
. Accès routier : l'A 86 à 1 km, quais de Seine, A15
. Aéroport Charles de Gaulle à 20 km
Consultant

Anne-laure Taupiac
Détails de l'agent







