Activités / Entrepôts
Réf. 97336Exclusivité JLL
42 RUE DE L'AVENIR
GENAS, 69740
70 € / m²
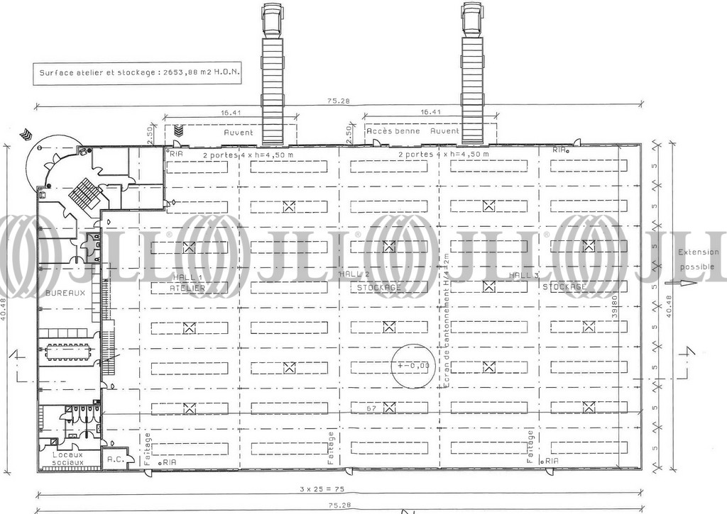
- Surface1 000 m²
- DisponibilitéImmédiate
- Description
- Prestations & Services
- DPE
- Localisation et Transports
- Plans
- Brochure
- Consultant
- Nous contacter
Description
A LOUER - Genas (69740) - Rhône (69)
JLL vous propose, à la location, des locaux à usage d’activité / stockage. Entrepôt fonctionnel bénéficiant d’une très belle hauteur, d'une porte sectionnelle de plain-pied et d'emplacements de parking. Site clos et sécurisé accessible par gros porteurs, à proximité des axes autoroutiers (A46, A43) et des transports en commun (bus, train). Très belle opportunité JLL, à visiter rapidement !
Les informations sur les risques auxquels ce bien est exposé sont disponibles sur le site Géorisques : www.georisques.gouv.fr
Surface disponible
DPE
Diagnostic en cours de réalisation
Localisation et Transports
. A 20 min de la gare de Lyon Part Dieu
. A 35 min de l'aéroport /gare TGV de Lyon Saint Exupéry
. Bus : lignes 48, ZI5
. Accès routiers : Rocade Est (A46), A43
. A 35 min de l'aéroport /gare TGV de Lyon Saint Exupéry
. Bus : lignes 48, ZI5
. Accès routiers : Rocade Est (A46), A43
Consultant

Yohan Chiner
Détails de l'agent

