Activités / Entrepôts
Réf. 81276BATIMENT B
GEMENOS, 13420
105 € / m²
- Surface4 192 m²
- DisponibilitéImmédiate
- Description
- Prestations & Services
- DPE
- Localisation et Transports
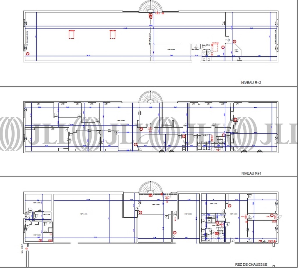
- Plans
- Brochure
- Consultant
- Nous contacter
Description
A LOUER - GEMENOS (13420)
Découvrez cette opportunité d'implantation stratégique au cœur de la région PACA, bénéficiant d'une excellente desserte multimodale avec proximité immédiate de l'A52, A502, A50 et A501. L'emplacement offre un accès privilégié aux transports en commun avec la ligne TER à Aubagne et les lignes de bus 11 et 301, garantissant une connectivité optimale pour vos équipes et clients.
Les informations sur les risques auxquels ce bien est exposé sont disponibles sur le site Géorisques : www.georisques.gouv.fr
Surface disponible
DPE
Diagnostic en cours de réalisation
Localisation et Transports
. TER : Aubagne à 6 km
. Bus : lignes 11, 301
. Accès routiers : A52, A502, A50, A501
. Bus : lignes 11, 301
. Accès routiers : A52, A502, A50, A501
Consultant

Mathieu Terzian
Détails de l'agent



