
Activités / Entrepôts
Réf. 93688LA CARTONNERIE
DAMMARIE LES LYS, 77190
200 € / m²
- Surface600 m²
- DisponibilitéImmédiate
- Description
- DPE
- Localisation et Transports
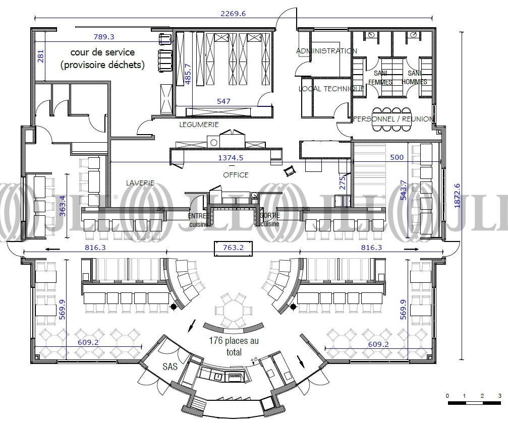
- Plan
- Brochure
- Consultant
- Nous contacter
Description
A LOUER - Dammarie les Lys (77190) - Seine et Marne (77)
JLL vous propose, à la location, un bâtiment à usage de commerce / restauration, au sein d'une zone d'activités commerciales. Site à proximité des axes autoroutiers (A5, A6) et des transports en commun (bus, RER, train). Belle opportunité JLL, à visiter rapidement !
Les informations sur les risques auxquels ce bien est exposé sont disponibles sur le site Géorisques : www.georisques.gouv.fr
Surface disponible
DPE
Diagnostic en cours de réalisation
Localisation et Transports
. RER D : gare de Vosves ou Melun . SNCF : gare de Melun . Bus : ligne 3601 . Accès routiers : A5, A6
Consultant

Frank Chavinier
Détails de l'agent