VEELLAGE COURTRY - BATIMENT A
AVENUE DES ONZE ARPENTS
COURTRY, 77181
137 € / m²
- Surface806 m²
- DisponibilitéImmédiate
- Description
- Prestations & Services
- DPE
- Localisation et Transports
- Plans
- Brochure
- Consultant
Description
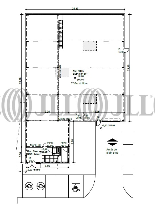
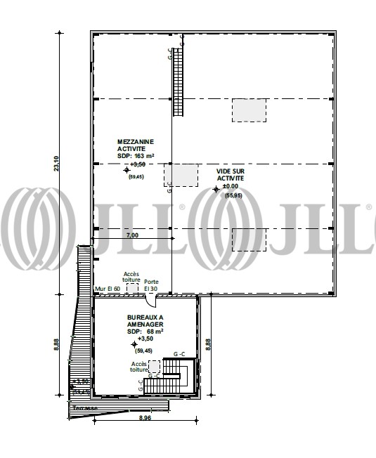
Locaux d’activités à louer à Courtry (77), JLL vous propose des locaux neufs à usage d’activité / stockage avec bureaux d’accompagnement à la location sur la ZAC de la Régale de 700 à 1 550m² environ.
Le parc sera composés de 10 bâtiments indépendants. Chaque bâtiment bénéficiera de son entrée privative et indépendante, avec accès poids-lourds / gros porteurs, d’une porte sectionnelle de plain-pied ou quai selon le bâtiment, un stockage de 8m de hauteur sous plafond et une résistance au sol de 3 tonnes par m² dans la partie activité.
Le site est sécurisé et situé à proximité de l'A104/N3, et de nombreux commerces/services ... Très belle opportunité JLL !
Les informations sur les risques auxquels ce bien est exposé sont disponibles sur le site Géorisques : www.georisques.gouv.fr
Surface disponible
DPE
Diagnostic en cours de réalisation
Localisation et Transports
Accès routier : A104
Consultant

Romain Borella
Détails de l'agent