Activités / Entrepôts
Réf. 89114185 RUE LOUISE LABBE
CHAPONNAY, 69970
85 € / m²
- Surface2 282 m²
- DisponibilitéImmédiate
- Description
- Prestations & Services
- DPE
- Localisation et Transports
- Plans
- Brochure
- Consultant
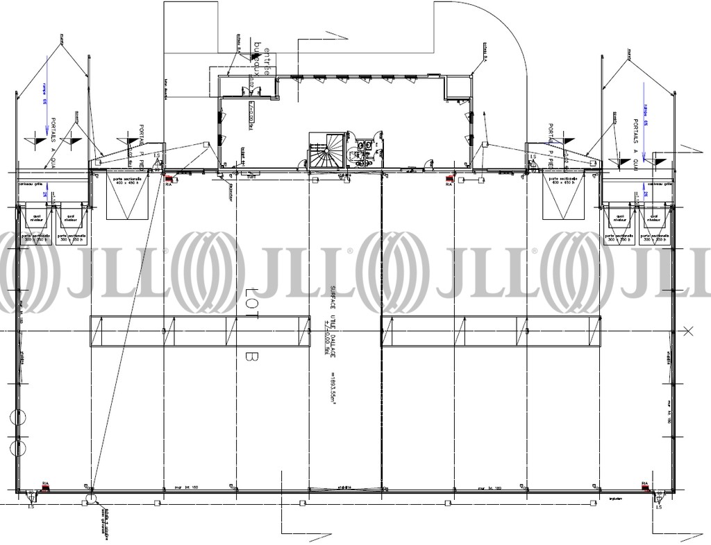
Description
A LOUER - Chaponnay (69970) - Rhône (69)
JLL vous propose, à la location, des locaux à usage d’activité / stockage avec bureaux d’accompagnement, au sein d'un parc d'activités. Entrepôt fonctionnel bénéficiant d’une belle hauteur, de portes sectionnelles à quai / plain-pied et de nombreux emplacements de parking. Site clos et sécurisé accessible par gros porteurs, à proximité des axes autoroutiers (Rocade Est, A7, A43). Très belle opportunité JLL !
Les informations sur les risques auxquels ce bien est exposé sont disponibles sur le site Géorisques : www.georisques.gouv.fr
Surface disponible
DPE
Diagnostic en cours de réalisation
Localisation et Transports
. SNCF : gare TGV Lyon Saint-Exupéry à 22 min
. SNCF : gare TGV Lyon Part Dieu à 30 min . Bus : ligne 54 . Accès routiers : A46, A7, A43
. Aéroport : Lyon Saint-Exupéry à 22 min
. SNCF : gare TGV Lyon Part Dieu à 30 min . Bus : ligne 54 . Accès routiers : A46, A7, A43
. Aéroport : Lyon Saint-Exupéry à 22 min
Consultant

Remi Cibard
Détails de l'agent