
Activités / Entrepôts
Réf. 98536ZI DU VAL D'ARGENT
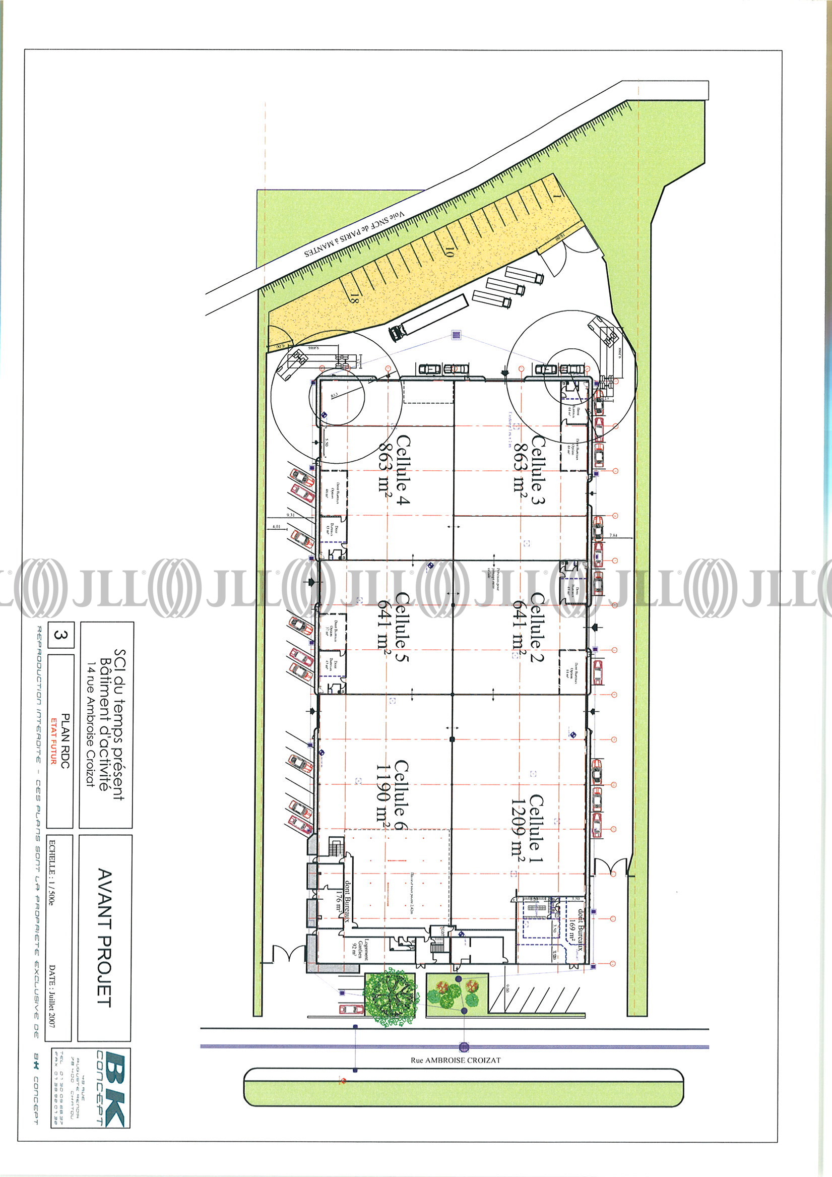
14 RUE AMBROISE CROIZAT
ARGENTEUIL, 95100
90 € / m²
- Surface1 209 m²
- DisponibilitéImmédiate
- Description
- Prestations & Services
- DPE
- Localisation et Transports
- Plans
- Brochure
- Consultant
- Nous contacter
Description
A louer, à Argenteuil (95), au sein de la zone d'activités du Val d'Argent, sur une parcelle de 9 749 m², des lots à usage d'activités et de bureaux récents bénéficiant d'une grande porte de plain pied par lot.
Les informations sur les risques auxquels ce bien est exposé sont disponibles sur le site Géorisques : www.georisques.gouv.fr
- Impôt foncier à la charge du Preneur
Surface disponible
DPE
Diagnostic en cours de réalisation
Localisation et Transports
. BUS
. RER A / SNCF "Sartrouville"
. SNCF "Val d'Argent"
. Accès routiers : RN 192, A86 à 4 kms, A15
. RER A / SNCF "Sartrouville"
. SNCF "Val d'Argent"
. Accès routiers : RN 192, A86 à 4 kms, A15
Consultant

Anne-laure Taupiac
Détails de l'agent