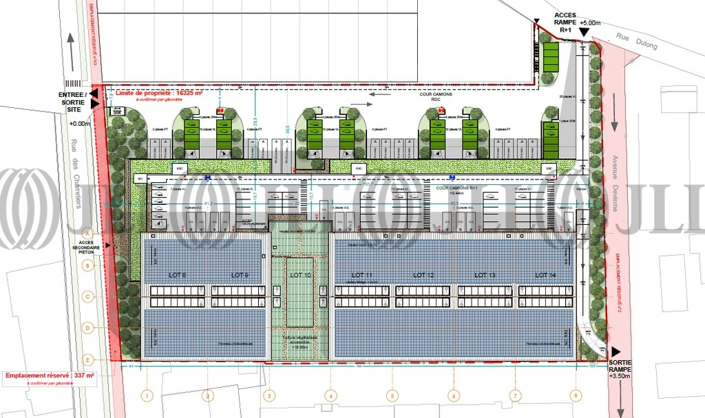
Activités / Entrepôts
Réf. 87183RUE DULONG
ARGENTEUIL, 95100
167,81 € / m²
- Surface19 173 m² divisibles dès 1 106 m²
- Disponibilité4e trim. 2026
- Description
- Prestations & Services
- DPE
- Localisation et Transports
- Plans
- Brochure
- Consultant
- Nous contacter
Description
A louer, à Argenteuil (95), à toute proximité des quais de Seine, sur une parcelle de 16 300 m², un bâtiment d'activités à étage situé en face de l'A86 et ideal pour de la logistique urbaine ou activités légères.
Les informations sur les risques auxquels ce bien est exposé sont disponibles sur le site Géorisques : www.georisques.gouv.fr
Surface disponible
DPE
Diagnostic en cours de réalisation
Localisation et Transports
. Accès A15
. Accessibilite : au pied de la gare d’Argenteuil Ligne SNCF J - Paris St Lazare
. Accessibilite : au pied de la gare d’Argenteuil Ligne SNCF J - Paris St Lazare
Consultant

Anne-laure Taupiac
Détails de l'agent


