
PROJET - PARC DE BRAMAFAN
BOULEVARD DE L EUROPE
ST LAURENT DE MURE, 69720
Nous consulter
- Surface2 716 m²
- DisponibilitéNous consulter
- Description
- Prestations & Services
- DPE
- Localisation et Transports
- Plans
- Brochure
- Consultant
- Nous contacter
Description
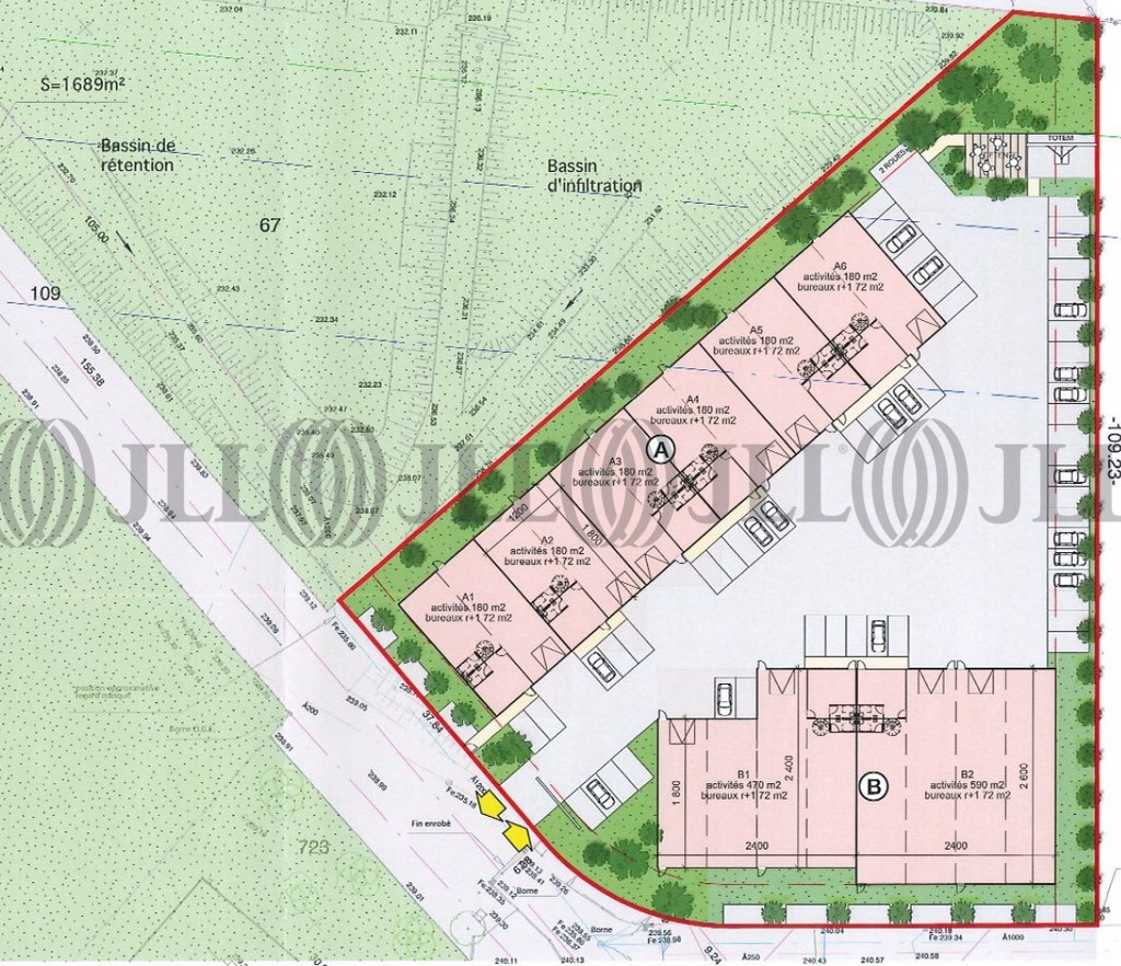
A LOUER / A VENDRE - Saint Laurent de Mûre (69720) - Rhône (69)
JLL vous propose, à la location ou à la vente, un projet clé en main : bâtiments neufs à usage d’activité / stockage avec bureaux d’accompagnement, sur un terrain de 6500 m² environ.
Entrepôts fonctionnels bénéficiant de portes sectionnelles de plain-pied et de nombreux emplacements de parking.
Surfaces et aménagements adaptables selon les besoins de l'utilisateur. Possibilité de développer un bâtiment unique de 2000 à 3000 m² environ.
Site clos et sécurisé, à proximité des axes autoroutiers (A432, A43) et de l'aéroport Lyon-Saint-Exupéry.
Très belle opportunité JLL !
Les informations sur les risques auxquels ce bien est exposé sont disponibles sur le site Géorisques : www.georisques.gouv.fr
Surface disponible
DPE
Diagnostic en cours de réalisation
Localisation et Transports
. Aéroport : Lyon-Saint-Exupéry à 7 min
Consultant

Yohan Chiner
Détails de l'agent