Activités / Entrepôts
Réf. 93741ZI DE LA MARTINERIE
RUE JOSEPH ROUSSEAU
DIORS, 36130
Loyer annuel: 35,05 € / m²
Prix à la vente: 339,30 € / m²
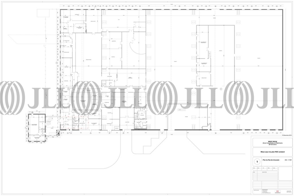
- Surface6 248 m²
- DisponibilitéImmédiate
- Description
- Prestations & Services
- DPE
- Localisation et Transports
- Plan
- Brochure
- Consultant
- Nous contacter
Description
A VENDRE - DIORS (36130 )
Opportunité exceptionnelle aux portes de Châteauroux ! À Diors, à seulement 10 minutes du cœur économique de l'Indre, découvrez ce vaste ensemble immobilier de 6 248 m² alliant espaces d'activités et bureaux. Idéalement situé dans la ZI de la Martinerie, ce bien bénéficie d'un accès rapide aux axes routiers majeurs (N151, A20), offrant une connexion stratégique pour votre entreprise.
Les informations sur les risques auxquels ce bien est exposé sont disponibles sur le site Géorisques : www.georisques.gouv.fr
Surface disponible
DPE
Diagnostic en cours de réalisation
Localisation et Transports
. Accès routiers : N151, A20
Consultant

Jean-charles Barnier
Détails de l'agent







