
Plateformes Logistiques
Réf. 9118150 RUE TICLENI
VILLENEUVE D ASCQ, 59650
66,53 € / m²
- Surface12 023 m²
- DisponibilitéImmédiate
- Description
- Prestations & Services
- DPE
- Localisation et Transports
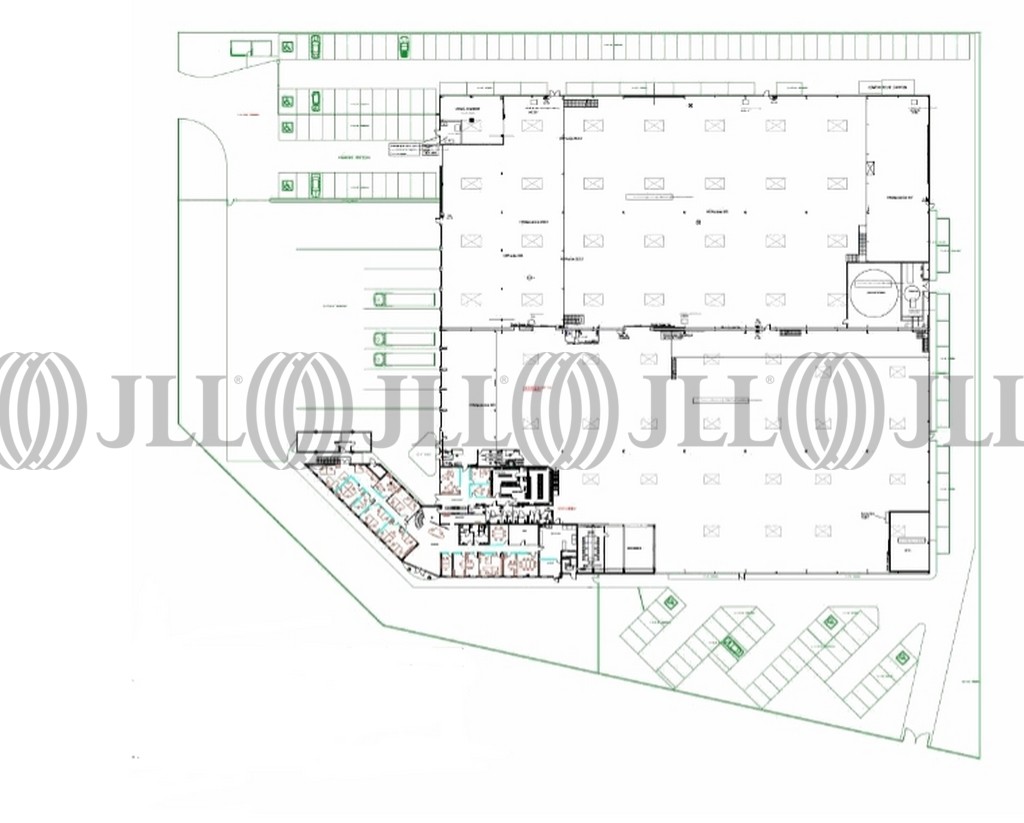
- Plan
- Brochure
- Consultant
- Nous contacter
Description
A LOUER - VILLENEUVE D ASCQ (59650)
JLL vous propose à la location, des locaux à usage d’activité / stockage avec bureaux d’accompagnement.
Entrepôts fonctionnels bénéficiant de portes à quai / plain-pied et d'emplacements de parking.
Site accessible par gros porteurs, à proximité des axes autoroutiers. Très belle opportunité JLL, à visiter rapidement !!
Les informations sur les risques auxquels ce bien est exposé sont disponibles sur le site Géorisques : www.georisques.gouv.fr
- Zone AFR
Surface disponible
DPE
Diagnostic en cours de réalisation
Localisation et Transports
. Accès routiers : A27, N227, A1
. SNCF : gare d'Ascq
. Bus : ligne 72
. Métro : Cité Scientifique Pr Gabillard
. Aéroport de Lille Lesquin
. SNCF : gare d'Ascq
. Bus : ligne 72
. Métro : Cité Scientifique Pr Gabillard
. Aéroport de Lille Lesquin
Consultant

Aurélien Desprets
Détails de l'agent