Plateformes Logistiques
Réf. 98388ZI ROUBIAN - TARASCON
RUE DES CHARRETIERS
TARASCON, 13150
49 € / m²
- Surface5 677 m² divisibles dès 2 297 m²
- Disponibilité3e trim. 2026
- Description
- Prestations & Services
- DPE
- Localisation et Transports
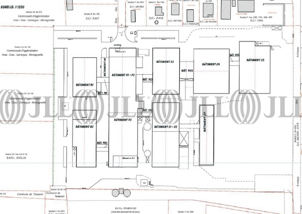
- Plan
- Brochure
- Consultant
- Nous contacter
Description
Location entrepot Marseille / Tarascon - Bouches-du-Rhône
Au carrefour stratégique de l'axe rhodanien et de l'arc méditerranéen, site industriel de plus de 28 000 m² composé de 9 bâtiments, sur un terrain de 10,5 ha.
Possibilité de stockage plein air important. Shon résiduelle importante.
N’hésitez pas à nous contacter pour plus d’informations.
Les informations sur les risques auxquels ce bien est exposé sont disponibles sur le site Géorisques : www.georisques.gouv.fr
Surface disponible
DPE
Diagnostic en cours de réalisation
Localisation et Transports
. Accès routiers : A9 (10 min) et A54 (15 min)
. Zone portuaire de Tarascon : accès réseau fluvial du Rhône
. Zone portuaire de Tarascon : accès réseau fluvial du Rhône
Consultant

Mathieu Terzian
Détails de l'agent






