
Plateformes Logistiques
Réf. 93616PROJET
RUE DU NOYER A LA MALICE
PUISEUX EN FRANCE, 95380
Nous consulter
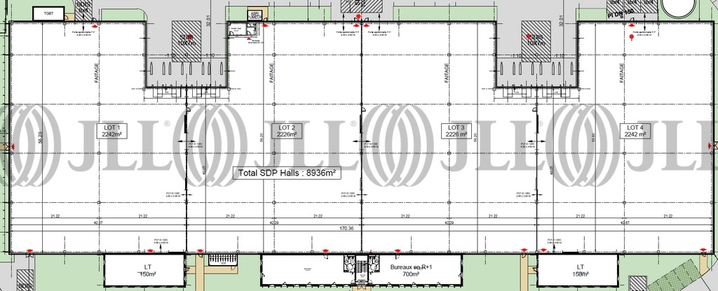
- Surface9 958 m² divisibles dès 4 980 m²
- DisponibilitéNous consulter
- Description
- Prestations & Services
- DPE
- Localisation et Transports
- Plans
- Brochure
- Consultant
- Nous contacter
Description
JLL vous propose un entrepôt à la location ou à la vente à Puiseux en France (95380), sur terrain indépendant de 22 361 m².
Cette surface de stockage de 9 958 m² sera idéalement située à proximité d’axes routiers, bassins d’emplois et de consommation et accessible par gros porteurs.
Ce site bénéficiera de prestations qualitatives : accès à quais, accès de plain-pied, aire de manœuvre, places de parking (VL/PL).
Les informations sur les risques auxquels ce bien est exposé sont disponibles sur le site Géorisques : www.georisques.gouv.fr
Surface disponible
DPE
Diagnostic en cours de réalisation
Localisation et Transports
. RER D : Louvres . Bus : Ligne R5 . Accès routiers : N104, A1
Consultant

Benjamin Dohin
Détails de l'agent